Büros
ID H0102Provisionsfrei
Büroimmobilie - Hamburg, Hamburg-Altstadt - H0102
Hamburg-Altstadt, 20095, Hamburg, Hamburg
22 € / m²
- Fläche285 - 6.668 m²
- VerfügbarkeitAuf Anfrage
- Objekt
- Ausstattung
- Lage und Verkehrsanbindung
- Grundrisse
- Exposé herunterladen
- Ihr Kontakt
- Anfrage senden
Objekt
Das markante Kontorhaus „Sprinkenhof“ wurde zwischen den Jahren 1927-1943 erbaut und im Jahr 2002 vollumfänglich saniert. Somit wurden die Entrées und Treppenhäuser komplett neu aufgearbeitet, ohne dass der klassische Kontorhauscharme verloren gegangen ist.
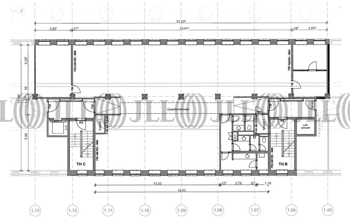
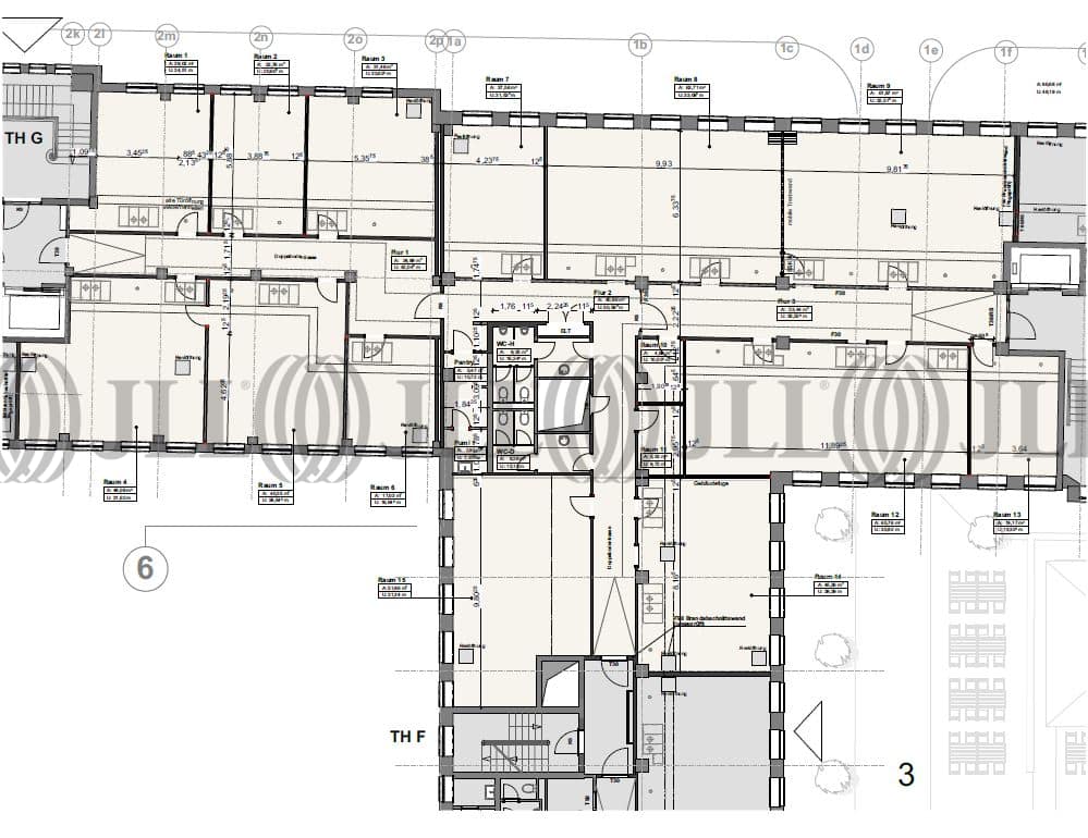
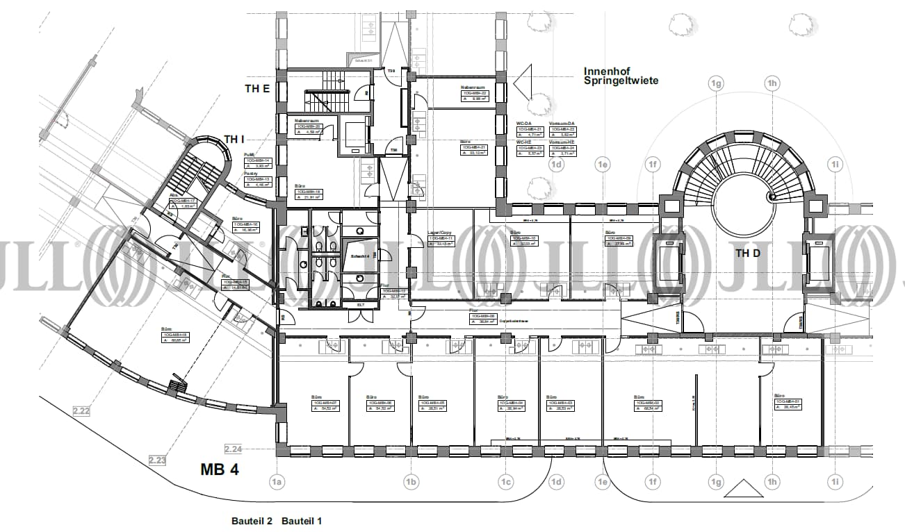
Die Büroflächen erlauben aufgrund des flexiblen Grundrisses Aufteilungen von Großraum- bis hin zu Einzelbüros und werden in enger Absprache mit dem künftigen Mieter ausgebaut.
Die Büroflächen erlauben aufgrund des flexiblen Grundrisses Aufteilungen von Großraum- bis hin zu Einzelbüros und werden in enger Absprache mit dem künftigen Mieter ausgebaut.
Verfügbare Fläche
Lage und Verkehrsanbindung
Das Kontorhausviertel, gelegen in der Hamburger Altstadt, steht für die historische Kaufmannsgeschichte und den Handel in der Hafenstadt. Diese Aspekte haben den Standort über Deutschlands Grenzen hinaus bekannt gemacht, so dass dieser unter dem UNESCO-Welterbe geschützt wird. Neben der Geschichte, bedienen sich die Mieter des Teilmarktes einer Vielfalt an gastronomischen Einrichtungen sowie Geschäften des täglichen Bedarfs. Die Einkaufsstraße „Mönckebergstraße“ ist in ca. 5 Min. fußläufig erreichbar. Dienstleister des täglichen Bedarfs befinden sich in der Nähe.
- Hauptbahnhof, Hauptbahnhof, Gehzeit: 8 min
- Bus, Bushaltestelle Steinstraße Buslinien 120/124/34/11, Gehzeit: 2 min
- Bundesautobahn, A 1, Fahrzeit: 10 min
- Bundesautobahn, A 7, Fahrzeit: 20 min
- Flughafen, Hamburg, Fahrzeit: 25 min
Ihr Kontakt

Janina Voß
Ihr Kontakt



