Büros
ID H0089Provisionsfrei
Büroimmobilie - Hamburg, Hamburg-Altstadt - H0089
Hamburg-Altstadt, 20095, Hamburg, Hamburg
28,50 € / m²
- Fläche426 m²
- VerfügbarkeitAuf Anfrage
- Objekt
- Ausstattung
- Lage und Verkehrsanbindung
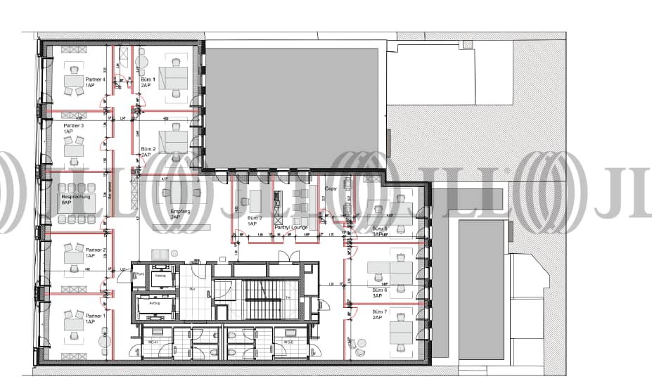
- Grundriss
- Exposé herunterladen
- Ihr Kontakt
- Anfrage senden
Objekt
Dieses Neubauprojekt in bester Innenstadtlage besticht neben der prominenten Adresse „Ballindamm“ durch den unverbaubaren Blick auf die Hamburger Binnenalster – auch schon aus den unteren Etagen. Der Ausbau der Etagen erfolgt in hochwertigster Art und Weise und der künftige Grundriss wird in enger Abstimmung mit dem künftigen Mieter hergerichtet.
Zertifizierungen
Energieausweis
Für diese Liegenschaft liegt ein Bedarfsausweis vom 2015-01-05 vom Eigentümer/Vermieter vor. Die wesentlichen Energieträger der Liegenschaft sind KWK,Nahwärme,Fernwärme. Der Endenergiebedarf Strom beträgt 88.42 kWh/(m²*a). Der Endenergiebedarf Wärme beträgt 46.66 kWh/(m²*a).Verfügbare Fläche
Lage und Verkehrsanbindung
Ballindamm 2-3 liegt zentral in Hamburg direkt an der Binnenalster. Die Adresse befindet sich in bester Innenstadtlage, umgeben von exklusiven Einkaufsstraßen wie dem Jungfernstieg. Die Verkehrsanbindung ist ausgezeichnet, mit der U-Bahn-Station Jungfernstieg in Gehweite. Das Gebäude bietet einen beeindruckenden Blick auf die Alster und befindet sich in einer hochfrequentierten Geschäftslage, die besonders für prestigeträchtige Unternehmen attraktiv ist.
- Flughafen, Hamburg, Entfernung: 11 km
- Bundesautobahn, A 1, Fahrzeit: 15 min
- Bundesautobahn, A 7, Fahrzeit: 20 min
- Hauptbahnhof, Hauptbahnhof, Gehzeit: 3 min
Ihr Kontakt

Nikolina Malek
Ihr Kontakt





