Büros
ID H0088Provisionsfrei
Büroimmobilie - Hamburg, Neustadt - H0088
Neustadt, 20355, Hamburg, Hamburg
Kontaktieren Sie uns für den Preis
- Fläche392 - 5.291 m²
- VerfügbarkeitSofort
- Objekt
- Ausstattung
- Lage und Verkehrsanbindung
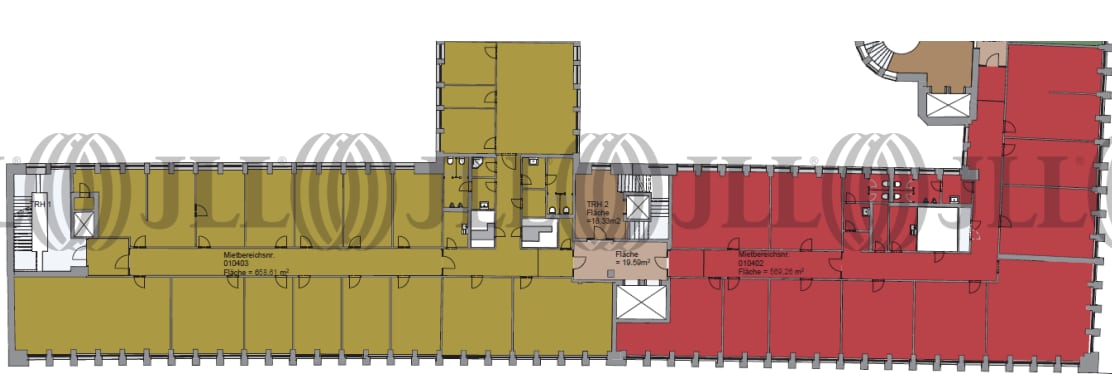
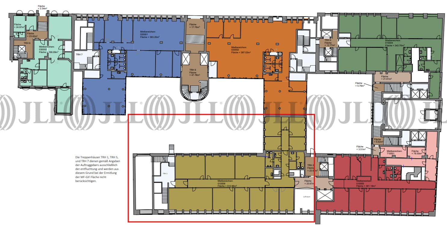
- Grundrisse
- Exposé herunterladen
- Ihr Kontakt
- Anfrage senden
Objekt
Die Geschichte des Brahms Kontor beginnt bereits im Jahre 1904. Damals wurde ein fünfgeschossiges Kontorhaus erbaut, welches mit den Jahrzehnten immer wieder erweitert und zuletzt im Jahre 2005-2008 durch eine umfangreiche Modernisierung, Restaurierung und durch den Anbau des Neubaus sein derzeitiges Bild erhielt. Die zur Vermietung stehenden Büroflächen verfügen über eine hochwertige Ausstattung.
Zertifizierungen
Energieausweis
Für diese Liegenschaft liegt ein Bedarfsausweis vom 24.07.2009 vom Eigentümer/Vermieter vor. Die wesentlichen Energieträger der Liegenschaft sind Heizwerk, fossil, KWK, Strom. Endenergiebedarf: 212,30 kWh/(m²*a)Verfügbare Fläche
Lage und Verkehrsanbindung
Das Bürogebäude befindet sich in zentraler City-Lage mit fußläufiger Entfernung zum Gänsemarkt, Neuer Wall und dem Bahnhof Dammtor. Restaurants und Einkaufsmöglichkeiten für den täglichen Bedarf sind in wenigen Gehminuten zu erreichen.
- Hauptbahnhof, Hauptbahnhof, Fahrzeit: 7 min
- U-Bahn, Gänsemarkt, Gehzeit: 2 min
- Bundesautobahn, A 1, Fahrzeit: 15 min
- Bundesautobahn, A 7, Fahrzeit: 15 min
- Flughafen, Hamburg, Fahrzeit: 30 min
Ihr Kontakt

Nikolina Malek
Ihr Kontakt
Marktinformationen
Mietmarkt
Neustadt, Hamburg
siehe 28 passende MietobjekteErfahren Sie mehr
* Durchschnittspreis auf Grundlage historischer Transaktionen.








