Büros
ID H0080Büroimmobilie - Hamburg, Altona-Altstadt - H0080
Altona-Altstadt, 22767, Hamburg, Hamburg
Provisionspflichtig: bei Anmietung 3 Brutto-Monatsmieten zzgl. gesetzlicher Umsatzsteuer.** der Wert kann je nach Vertragslaufzeit variieren.
16 € / m²
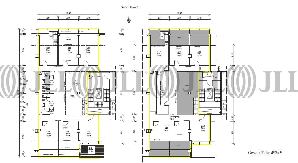
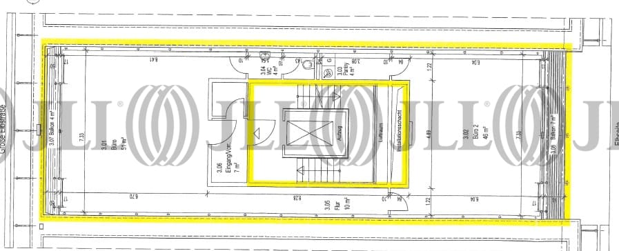
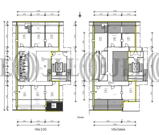
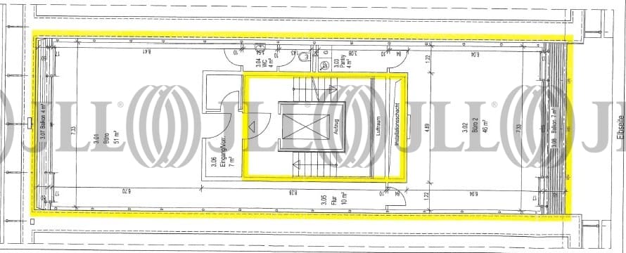
- Fläche131 - 1.813 m²
- VerfügbarkeitSofort
- Objekt
- Ausstattung
- Lage und Verkehrsanbindung
- Grundrisse
- Exposé herunterladen
- Ihr Kontakt
- Anfrage senden
Objekt
Die Elbkaihaus liegt direkt an der Elbe und verfügt über den typischen maritimen Flair Hamburgs. Das Ensemble umfasst eine Mietfläche von 12.000 qm. Die Mietflächen bestechen durch die Deckenhöhe, dem hohen Glasanteil und dem loftigen Charme und verfügen über einen Elb- oder Hafenblick. Die Raumaufteilung kann in Absprache mit dem Eigentümer und die Bedürfnisse des Mieters angepasst werden.
Zertifizierungen
Energieausweis
Für diese Liegenschaft liegt ein Bedarfsausweis vom 2014-04-22 vom Eigentümer/Vermieter vor. Die wesentlichen Energieträger der Liegenschaft sind KWK,Strom. Endenergiebedarf: 175.30000 kWh/(m²*a).Verfügbare Fläche
Lage und Verkehrsanbindung
Das Objekt befindet sich in einer atemberaubenden Lage direkt am Elbufer. Der Hamburger Fischmarkt, das Fischereihafen Restaurant sowie weitere Restaurants und Bars befinden sich in direkter Nachbarschaft. Fußläufig ist die Bushaltestelle der Linie 111 am Kreuzfahrtterminal Altona erreichbar. Auch die Anbindung an die Autobahn A7 ist innerhalb von 10 Autominuten gewährleistet. Dienstleister des täglichen Bedarfs befinden sich in der Nähe.
- Bus, Bushaltestelle Kreuzfahrtterminal Altona Buslinien 111, Gehzeit: 1 min
- Bundesautobahn, A 1, Fahrzeit: 20 min
- Bundesautobahn, A 7, Fahrzeit: 10 min
- Bundesautobahn, A 24, Fahrzeit: 20 min
- Flughafen, Hamburg, Fahrzeit: 17 min
Ihr Kontakt

Janina Voß
Ihr Kontakt








