Büros
ID H0059Provisionsfrei
Büroimmobilie - Hamburg, Hamburg-Altstadt - H0059
Hamburg-Altstadt, 20459, Hamburg, Hamburg
23 € / m²
- Fläche277 - 1.566 m²
- VerfügbarkeitSofort
- Objekt
- Ausstattung
- Lage und Verkehrsanbindung
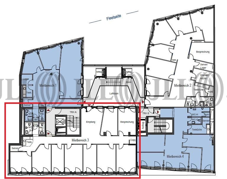
- Grundrisse
- Exposé herunterladen
- Ihr Kontakt
- Anfrage senden
Objekt
An der Grenze zwischen Altstadt und Neustadt, wo die Alster in die Elbe mündet, befindet sich dieses Gebäude - im Fluss von Erfolg und Bewegung.
Ein Gebäude mit Stil - ein Zusammenspiel von Glas und Metall - so präsentiert sich das Gebäude. Über das repräsentative Foyer, bestehend aus einem verglasten Atrium, erreichen Sie die Panoramaaufzüge.
Die Ausstattung der Büroflächen sind modern und hochwertig.
Die lärmgedämmte Fassade zum Rödingsmarkt gewährleistet konzentriertes Arbeiten.
Ein Gebäude mit Stil - ein Zusammenspiel von Glas und Metall - so präsentiert sich das Gebäude. Über das repräsentative Foyer, bestehend aus einem verglasten Atrium, erreichen Sie die Panoramaaufzüge.
Die Ausstattung der Büroflächen sind modern und hochwertig.
Die lärmgedämmte Fassade zum Rödingsmarkt gewährleistet konzentriertes Arbeiten.
Zertifizierungen
Energieausweis
LEED: SilverFür diese Liegenschaft liegt ein Verbrauchsausweis vom 30.04.2021 vom Eigentümer/Vermieter vor. Die wesentlichen Energieträger der Liegenschaft sind Fernwärme, Nahwärme. Der Endenergieverbrauch Strom beträgt 26.00 kWh/(m²*a). Der Endenergieverbrauch Wärme beträgt 47.00 kWh/(m²*a).
Verfügbare Fläche
Lage und Verkehrsanbindung
Das Objekt befindet sich im Herzen der Hamburger Altstadt zwischen Rathausmarkt und Hafen gelegen, in unmittelbarer Nähe der Fleetinsel. Die Innenstadt ist in wenigen Gehminuten zu erreichen. Dienstleister des täglichen Bedarfs befinden sich in der Nähe.
- Flughafen, Hamburg, Fahrzeit: 17 min
- Bundesautobahn, A 1, Fahrzeit: 15 min
- Bundesautobahn, A 7, Fahrzeit: 20 min
- Bundesautobahn, A 24, Fahrzeit: 20 min
- Bus, Bushaltestelle Rödingsmarkt Buslinien M3/M6/37, Gehzeit: 2 min
Ihr Kontakt

Alexander Menke
Ihr Kontakt










