Büros
ID H0051Provisionsfrei
Aktualisiert
Büroimmobilie - Hamburg, Altona-Altstadt - H0051
Altona-Altstadt, 22767, Hamburg, Hamburg
21,33 € / m²
- Fläche1.334 m²
- VerfügbarkeitAuf Anfrage
- Objekt
- Ausstattung
- Lage und Verkehrsanbindung
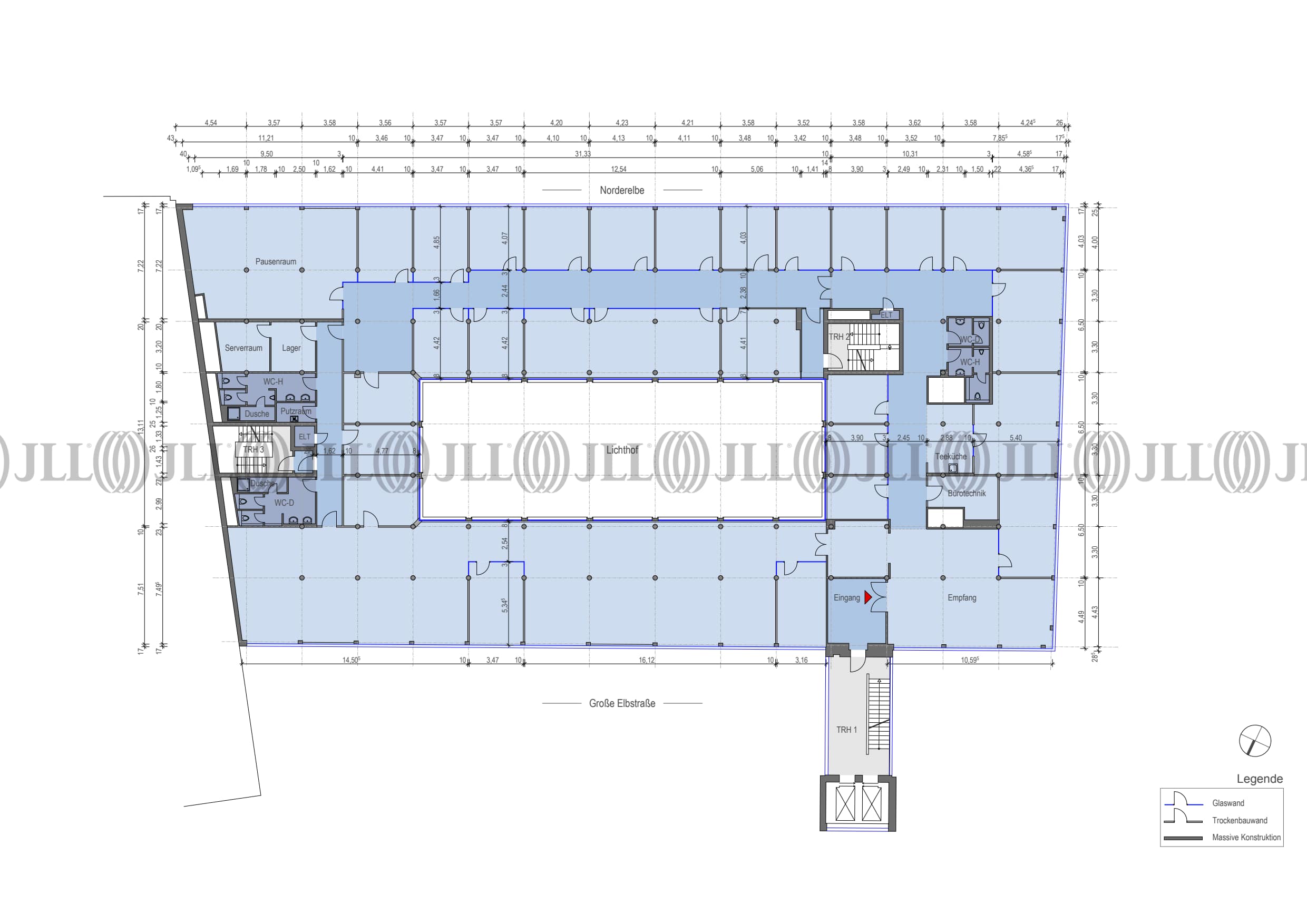
- Grundrisse
- Exposé herunterladen
- Ihr Kontakt
- Anfrage senden
Objekt
Der repräsentative “Elbspeicher” wurde 1890 errichtet und steht unter Denkmalschutz. Im Zuge der letzten Sanierungen im Jahre 2018 wurden äußerst hochwertige und ansprechende Büroräume geschaffen.
Große Fensterfronten sorgen für eine optimale Belichtung des 7.OG und einen unverbaubaren Elbblick. Die klimatisierte Fläche ist modern ausgebaut, verfügt über zwei Duschbäder und befindet sich in tadellosem Zustand.
Große Fensterfronten sorgen für eine optimale Belichtung des 7.OG und einen unverbaubaren Elbblick. Die klimatisierte Fläche ist modern ausgebaut, verfügt über zwei Duschbäder und befindet sich in tadellosem Zustand.
Verfügbare Fläche
Lage und Verkehrsanbindung
- Bus, Bushaltestelle Fischauktionshalle Buslinien 111, Gehzeit: 3 min
- Bundesautobahn, A 1, Fahrzeit: 14 min
- Bundesautobahn, A 7, Fahrzeit: 7 min
- Flughafen, Hamburg, Fahrzeit: 20 min
Ihr Kontakt

Alexander Menke
Ihr Kontakt





