Büros
ID H0011Premium JLL
Provisionsfrei
Aktualisiert
Büroimmobilie - Hamburg, Langenhorn - H0011
Langenhorner Chaussee 92-94
Langenhorn, 22415, Hamburg, Hamburg
12,50 € / m²
- Fläche770 m²
- VerfügbarkeitAuf Anfrage
- Objekt
- Ausstattung
- Lage und Verkehrsanbindung
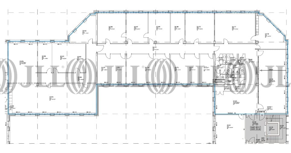
- Grundrisse
- Exposé herunterladen
- Ihr Kontakt
- Anfrage senden
Objekt
Das Bürogebäude wurde 1994 erbaut und hebt sich nicht nur durch seine unmittelbare Nähe zum Hamburger Flughafen ab. Der Eingangsbereich ist gepflegt und mit Natursteinbelägen ausgestattet. Die hellen Räume mit isolierverglasten Fenstern können flexibel nach den individuellen Wünschen des Mieters gestaltet und ausgebaut werden. Die mit Grünpflanzen ausgestattete Außenanlage rundet den markanten Gesamteindruck ab.
Zertifizierungen
Energieausweis
Für diese Liegenschaft liegt ein Verbrauchsausweis vom 25.06.2014 vom Eigentümer/Vermieter vor. Der wesentliche Energieträger der Liegenschaft ist Erdgas leicht. Der Endenergieverbrauch Strom beträgt 44,8 kWh/(m²*a). Der Endenergieverbrauch Wärme beträgt 82,3 kWh/(m²*a).Verfügbare Fläche
Lage und Verkehrsanbindung
Das Bürogebäude befindet sich in unmittelbarer Nähe des Hamburger Flughafens mit perfekter Autobahnanbindung. Diverse Einkaufsmöglichkeiten des täglichen Bedarfs befinden sich in der Nähe. Fußläufig ist die U-Bahnstation Fuhlsbüttel Nord erreichbar und bietet somit eine ideale Anbindung an die öffentlichen Verkehrsmittel.
- Flughafen, Hamburg, Fahrzeit: 5 min
- Bundesautobahn, A 7, Fahrzeit: 17 min
- Bundesautobahn, A 24, Fahrzeit: 25 min
- Bus, Bushaltestelle Flughafenstraße Buslinien 292, 606, 39, Gehzeit: 2 min
- U-Bahn, Fuhlsbüttel Nord, Gehzeit: 7 min
Ihr Kontakt

Doreen Redeker
Ihr Kontakt








