Büros
ID F3155Büroimmobilie - Eschborn - F3155
65760, Eschborn, Hessen
Provisionspflichtig: bei Anmietung 4 Netto-Monatsmieten zzgl. gesetzlicher Umsatzsteuer.** der Wert kann je nach Vertragslaufzeit variieren.
9 € / m²
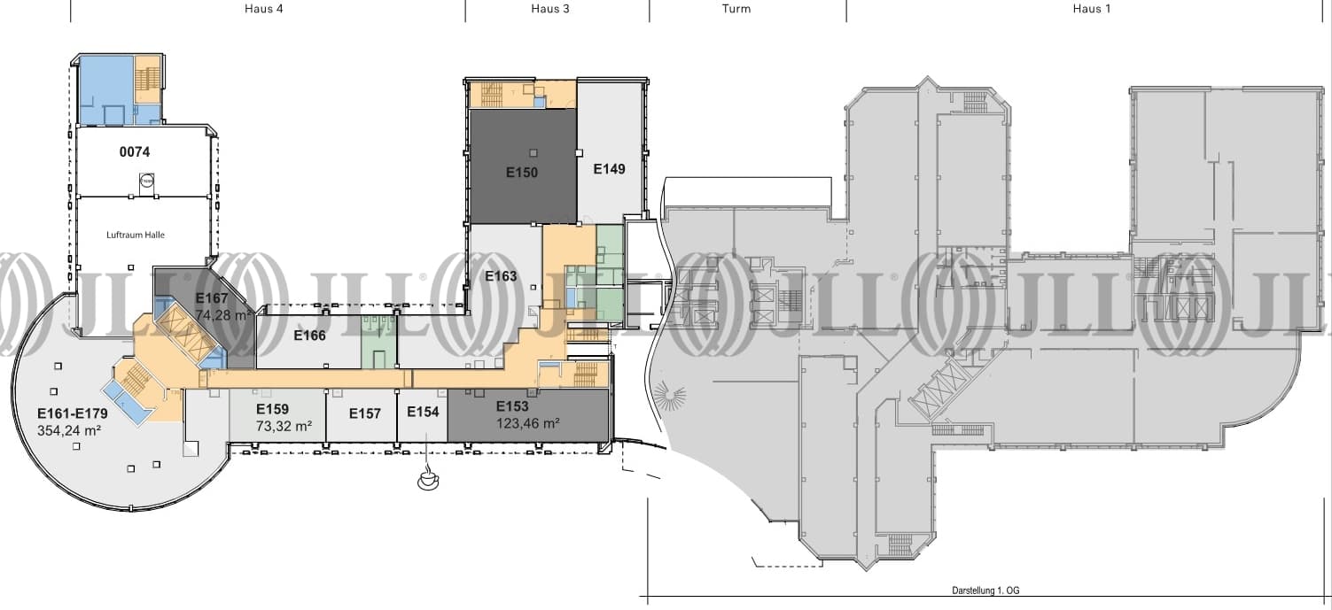
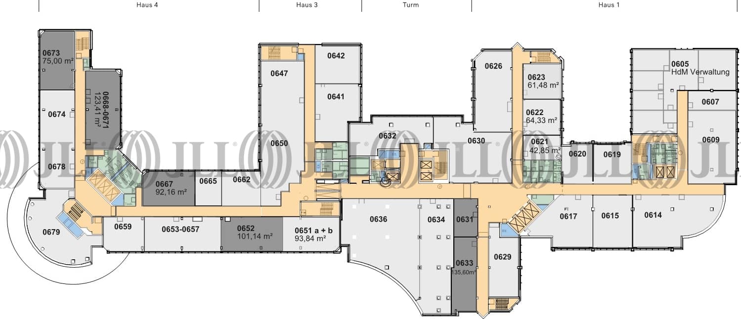
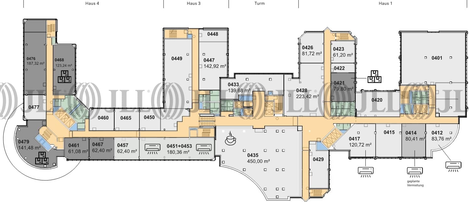
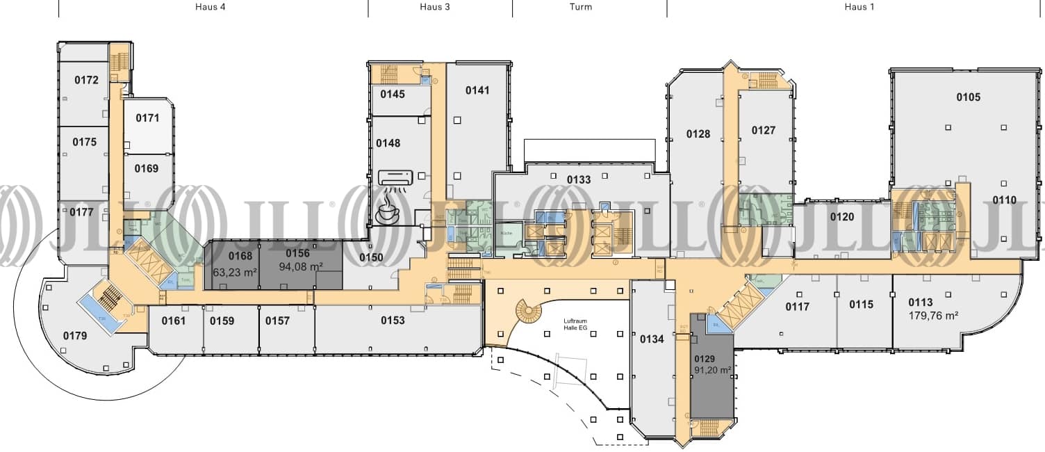
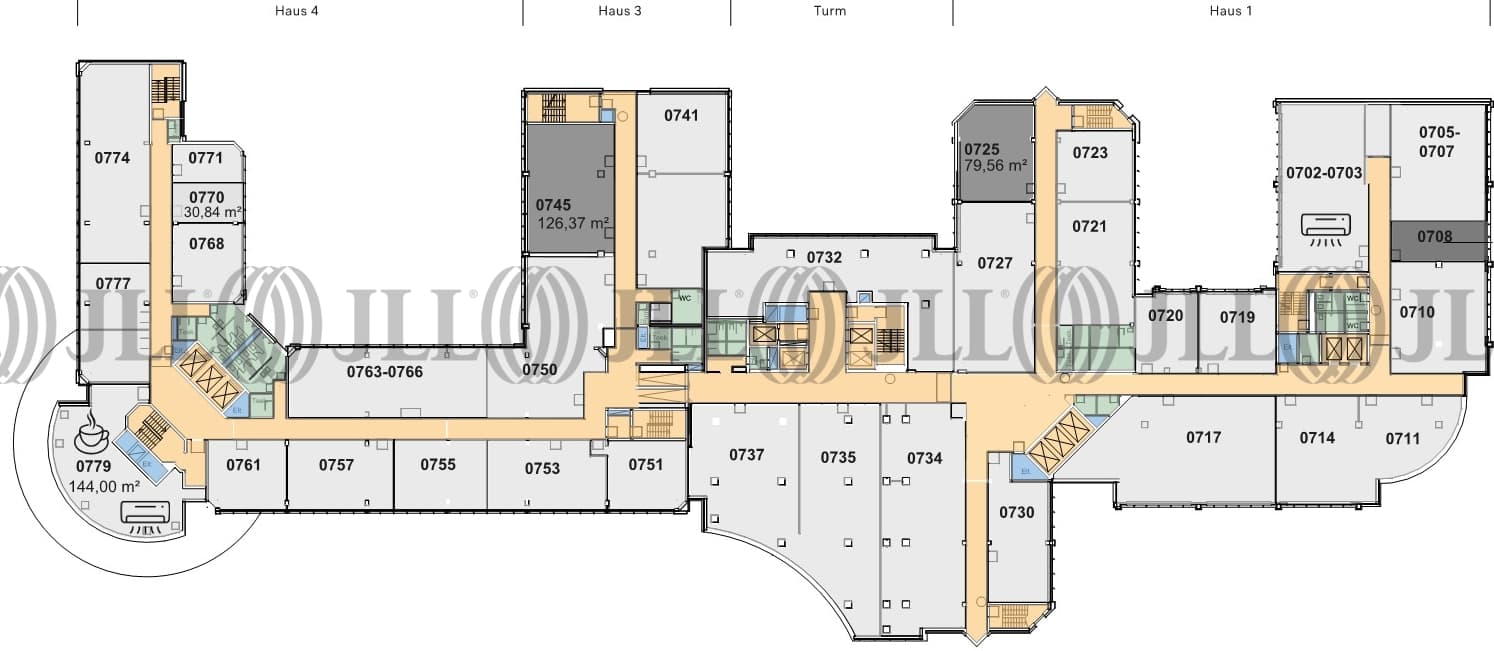
- Fläche96 - 3.251 m²
- VerfügbarkeitSofort
- Objekt
- Ausstattung
- Lage und Verkehrsanbindung
- Grundrisse
- Exposé herunterladen
- Ihr Kontakt
- Anfrage senden
Objekt
Seit mehr als 50 Jahren sind die HdM eines der bedeutendsten Mode-Center für den Fachhandel in Deutschland. Die Gründer der HdM erkannten bereits im Jahr 1972 die Attraktivität des Standorts Eschborn und legten daher hier den Grundstein des Haus der Mode 1.
Zertifizierungen
Energieausweis
Für diese Liegenschaft liegt ein Verbrauchsausweis vom 21.11.2013 vom Eigentümer/Vermieter vor. Der wesentliche Energieträger der Liegenschaft ist Erdgas schwer. Der Endenergieverbrauch Strom beträgt 45.20 kWh/(m²*a). Der Endenergieverbrauch Wärme beträgt 88.90 kWh/(m²*a).Verfügbare Fläche
Lage und Verkehrsanbindung
Die pulsierende Rhein-Main-Region mit ihrem internationalen Finanzplatz Frankfurt als Zentrum ist mit seinem Einzugsgebiet eines der kaufkraftstärksten Regionen Deutschlands und strahlt durch seine Lage weit hinaus in die Bundesländer Bayern, Baden-Württemberg, Thüringen, NordrheinWestfalen, Rheinland-Pfalz und das Saarland. Das internationale Drehkreuz Frankfurter Flughafen sowie der Hauptbahnhof der Main-Metropole sind in wenigen Minuten zu erreichen. Auch die Autobahnen A3, A5 und A66 sind direkt an den hdm Standort Eschborn angebunden.
- Hauptbahnhof, Frankfurt am Main, Fahrzeit: 11 min
- S-Bahn, Eschborn Süd, Linie S3, S4, Gehzeit: 13 min
- Bundesautobahn, A 66, Fahrzeit: 5 min
- Bundesstraße, B 8, Fahrzeit: 5 min
- Flughafen, Frankfurt am Main, Fahrzeit: 15 min
Ihr Kontakt

Genia Eitan
Ihr Kontakt





