Büros
ID F3113Provisionsfrei
Büroimmobilie - Mannheim, Käfertal-Mitte - F3113
Käfertal-Mitte, 68309, Mannheim, Baden-Württemberg
18,50 € / m²
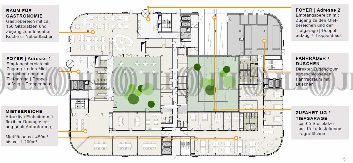
- Fläche330 - 13.280 m²
- VerfügbarkeitAuf Anfrage
- Ausstattung
- Lage und Verkehrsanbindung
- Grundrisse
- Exposé herunterladen
- Ihr Kontakt
- Anfrage senden
Verfügbare Fläche
Lage und Verkehrsanbindung
Mannheim/ Käfertal Mannheim Käfertal liegt nordöstlich der Mannheimer Innenstadt und verfügt dank der direkten Lage an der B 38, die auf die A 659 übergeht, über eine hervorragende überregionale Anbindung. In dem Gewerbegebiet haben sich Unternehmen wie ABB, Alstom und Bombardier niedergelassen. Im Norden des Stadtteils befindet sich die Konversionsfläche Franklin Mannheim mit einer Fläche so groß wie die Mannheimer Innenstadt. Auf diesem Gebiet werden seit Mai 2016 verschiedene Bauprojekte realisiert und zeigen das Entwicklungspotenzial dieses Standorts auf.
- Flughafen, Frankfurt am Main, Fahrzeit: 50 min
- Bundesautobahn, A 659, Fahrzeit: 8 min
- Bundesautobahn, A 6, Fahrzeit: 10 min
Ihr Kontakt

Konstantinos Krikelis
Ihr Kontakt


