Büros
ID F3104Büroimmobilie - Speyer - F3104
67346, Speyer, Rheinland-Pfalz
Provisionspflichtig: bei Anmietung 3 Netto-Monatsmieten zzgl. gesetzlicher Umsatzsteuer.** der Wert kann je nach Vertragslaufzeit variieren.
Kontaktieren Sie uns für den Preis
- Fläche130 - 697 m²
- VerfügbarkeitAuf Anfrage
- Objekt
- Lage und Verkehrsanbindung
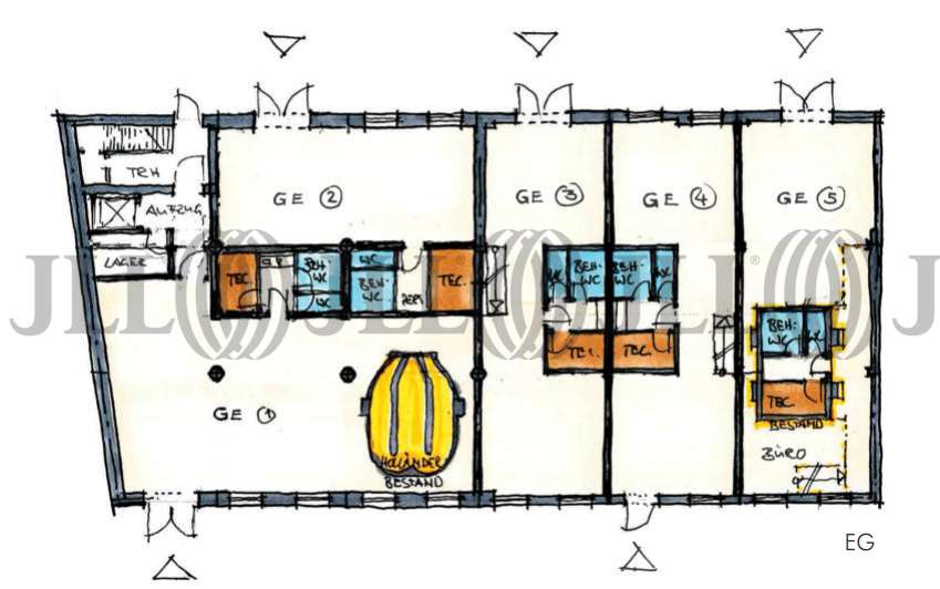
- Grundrisse
- Exposé herunterladen
- Ihr Kontakt
- Anfrage senden
Objekt
Der Industriehof in Speyer wird von seiner langen Historie geprägt: ursprünglich als Celluloidfabrik gebaut, zeichnen sich die Flächen heute durch ihren einzigartigen urbanen Charakter aus. Es können verschiedenste Flächen von Büro über Lager und Shopflächen angemietet werden. Durch die Revitalisierung lassen sich Flächenausbau und Schnitt flexibel und kreativ mitgestalten.
Verfügbare Fläche
Lage und Verkehrsanbindung
- Hauptbahnhof, Speyer Hauptbahnhof, Fahrzeit: 6 min
- Bus, Haltestelle Carl-Dupre-Straße, Gehzeit: 8 min
- Bundesautobahn, A61, Fahrzeit: 9 min
- Bundesautobahn, A6, Fahrzeit: 14 min
Ihr Kontakt

Konstantinos Krikelis
Ihr Kontakt


