Büros
ID F3102Büroimmobilie - Heidelberg, Südstadt - F3102
Südstadt, 69126, Heidelberg, Baden-Württemberg
Provisionspflichtig: bei Anmietung 3 Netto-Monatsmieten zzgl. gesetzlicher Umsatzsteuer.** der Wert kann je nach Vertragslaufzeit variieren.
13,50 € / m²
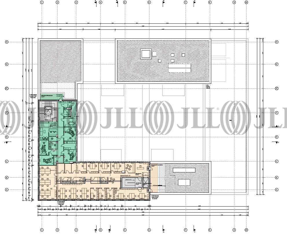
- Fläche1 - 1.253 m²
- VerfügbarkeitAuf Anfrage
- Ausstattung
- Lage und Verkehrsanbindung
- Grundrisse
- Exposé herunterladen
- Ihr Kontakt
- Anfrage senden
Verfügbare Fläche
Lage und Verkehrsanbindung
Heidelberg/ Rohrbach: Heidelberg/Rohrbach befindet sich in etwa 3 Kilometer südlich des Heidelberger Stadtzentrums auf einer Fläche von 640 Hektar. Im Kern des Stadtteils haben sich zahlreiche Geschäfte und Firmen niedergelassen. Durch die B 535, von „alt-Rohrbach“ getrennt, liegt Heidelbergs größtes Gewerbegebiet, Rohrbach-Süd. Das Gewerbegebiet ist durch die B 535 und B 3 direkt mit der A 5 und A 6 verbunden und bietet somit eine optimale Anbindung an das Autobahnnetz. In dem Gewerbegebiet befindet sich neben den großen modernen Gebäudekomplexen, in denen sich Unternehmen wie Eternit, IHI und FALK & Co angesiedelt haben, auch eine große Menge an Handelsunternehmen. Das Gewerbegebiet ist strukturell mit dem Leimener Gewerbegebiet verwachsen und befindet sich über die B 3, nur wenigen Minuten, von dem Gewerbegebiet Walldorf/ Wiesloch entfernt. Dienstleister des täglichen Bedarfs befinden sich in der Nähe.
- Flughafen, Frankfurt am Main, Fahrzeit: 49 min
- Bundesautobahn, A 5, Fahrzeit: 12 min
- Bundesautobahn, A 656, Fahrzeit: 9 min
- Bus, Bushaltestelle Nansenstr. Buslinien 29, Gehzeit: 2 min
Ihr Kontakt

Konstantinos Krikelis
Ihr Kontakt




