Büros
ID F3096Provisionsfrei
Büroimmobilie - Mannheim, Käfertal-Mitte - F3096
Käfertal-Mitte, 68309, Mannheim, Baden-Württemberg
15 € / m²
- Fläche954 - 3.020 m²
- VerfügbarkeitSofort
- Objekt
- Ausstattung
- Lage und Verkehrsanbindung
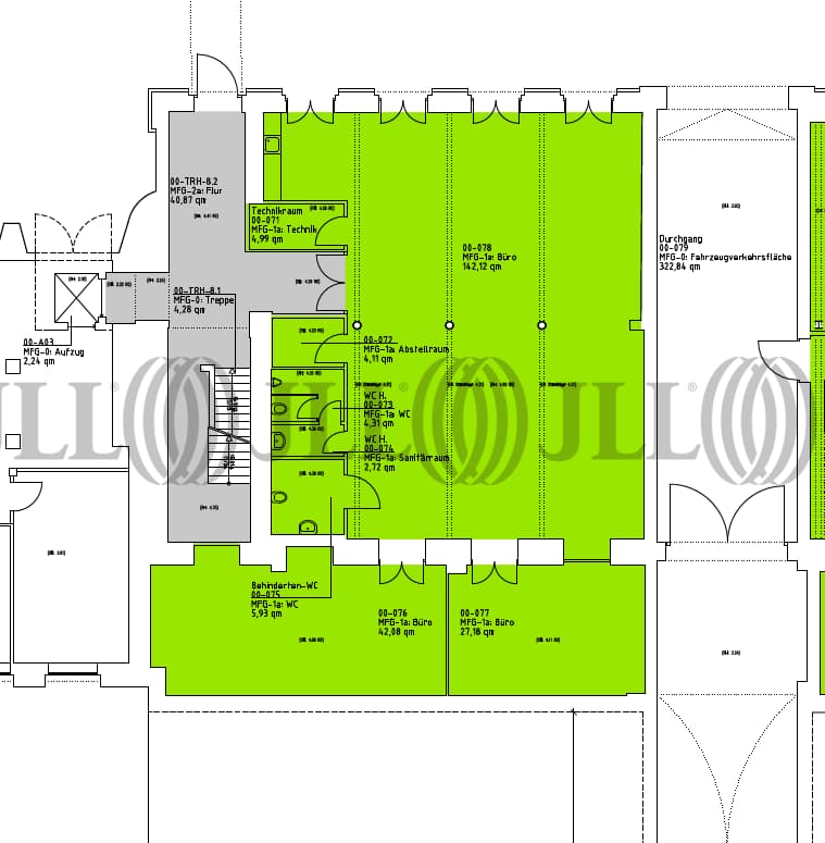
- Grundrisse
- Exposé herunterladen
- Ihr Kontakt
- Anfrage senden
Objekt
Das Haus Boveri am Standort Turbinenwerk vereint Historie und Moderne. Der historische Bau aus der Gründerzeit wurde in ein ESG-konformes, modernes Bürogebäude umgestaltet. Eine Besonderheit dieser Büroflächen sind die bis zu 4,20 m hohen Decken, welche den Räumen eine angenehme Loft-Atmosphäre verleihen.
Verfügbare Fläche
Lage und Verkehrsanbindung
Mannheim Käfertal liegt nordöstlich der Mannheimer Innenstadt und verfügt dank der direkten Lage an der B 38, die auf die A 659 übergeht, über eine hervorragende überregionale Anbindung. In dem Gewerbegebiet haben sich Unternehmen wie ABB, Alstom und Bombardier niedergelassen. Im Norden des Stadtteils befindet sich die Konversionsfläche Franklin Mannheim mit einer Fläche so groß wie die Mannheimer Innenstadt. Auf diesem Gebiet werden seit Mai 2016 fortwährend verschiedenste Bauprojekte realisiert und zeigen das Entwicklungspotenzial dieses Standorts auf.
- Flughafen, Frankfurt am Main, Fahrzeit: 45 min
- Bundesautobahn, A 659, Fahrzeit: 10 min
- Bundesautobahn, A 6, Fahrzeit: 10 min
- Bus, Käfertal Boveristraße, Gehzeit: 2 min
- Straßenbahn/Tram, Käfertal Boveristraße, Gehzeit: 2 min
- Hauptbahnhof, Hauptbahnhof Mannheim, Fahrzeit: 15 min
- S-Bahn, Käfertal Bahnhof , Gehzeit: 5 min
Ihr Kontakt

Konstantinos Krikelis
Ihr Kontakt




