
Büros
ID F3086Büroimmobilie - Frankenthal (Pfalz) - F3086
67227, Frankenthal (Pfalz), Rheinland-Pfalz
Provisionspflichtig: bei Anmietung 3 Netto-Monatsmieten zzgl. gesetzlicher Umsatzsteuer.** der Wert kann je nach Vertragslaufzeit variieren.
Kontaktieren Sie uns für den Preis
- Fläche4.000 m²
- VerfügbarkeitAuf Anfrage
- Lage und Verkehrsanbindung
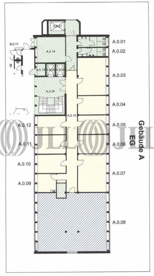
- Grundriss
- Exposé herunterladen
- Ihr Kontakt
- Anfrage senden
Verfügbare Fläche
Lage und Verkehrsanbindung
Das Objekt befindet sich in Frankenthal/Pfalz im Rhein-Neckar-Dreieck. Der Autobahnanschluß Frankenthal der BAB 6 ist innerhalb von 5 Minuten erreichbar. Die Städte Mannheim (10 km), Ludwigshafen (3 km), Heidelberg (40 km) sind über die Autbahnen BAB 61, BAB 65 und BAB 5 erreichbar. Der Flughafen Frankfurt ist lediglich 35 Autominuten entfernt. Ferner ist der Bahnhof von Frankenthal nur ca. 10 Gehminuten entfernt und bietet Anschluß an den regionalen Bahnverkehr. Eine Omnibushaltestelle befindet sich direkt vor dem Objekt.
Ihr Kontakt

Nezehat Capan
Ihr Kontakt