Büros
ID F3020Aktualisiert
Büroimmobilie - Ludwigshafen am Rhein, Mitte - F3020
Mitte, 67059, Ludwigshafen am Rhein, Rheinland-Pfalz
Provisionspflichtig: bei Anmietung 3 Netto-Monatsmieten zzgl. gesetzlicher Umsatzsteuer.** der Wert kann je nach Vertragslaufzeit variieren.
Kontaktieren Sie uns für den Preis
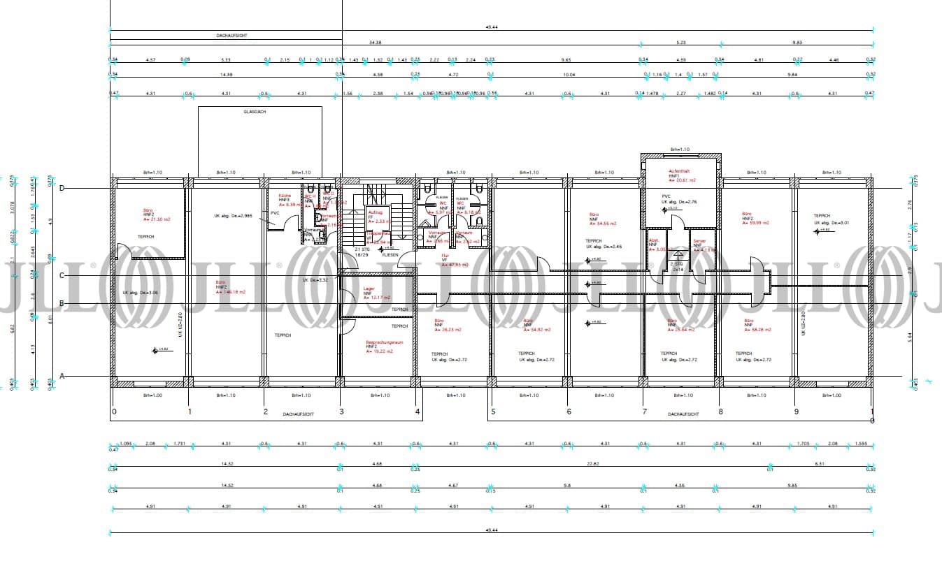
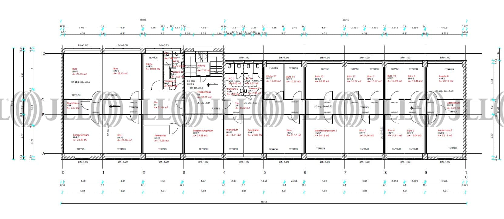
- Fläche183 - 229 m²
- VerfügbarkeitAuf Anfrage
- Ausstattung
- Lage und Verkehrsanbindung
- Grundrisse
- Exposé herunterladen
- Ihr Kontakt
- Anfrage senden
Verfügbare Fläche
Lage und Verkehrsanbindung
Ludwigshafen/ Mitte: Ludwigshafen Mitte wird von den beiden Hochstraßen B 44 und B 37 im Nordwesten und im Süden und im Westen vom Rhein begrenzt. Das Zentrum hat sich in den letzten Jahren zum Rheinufer verschoben und bietet dort mit der Rhein-Galerie und einem neu gestalteten Vorplatz eine Vielzahl an Geschäften des täglichen Bedarfs. Der Teilmarkt verfügt durch den Berliner Platz und den Bahnhof Mitte über eine hervorragende regionale als auch überregionale Anbindung an die öffentlichen Verkehrsmittel. Neben der hervorragenden Nahverkehrsanbindung verfügt Ludwigshafen Mitte über eine direkte Anbindung an die B 37, B 44 und B 38 sowie die A 650 und A 61. In diesem Teilmarkt befinden sich Unternehmen wie MLP, AbbVie sowie die Zentrale der Sparkasse Vorderpfalz.
- Hauptbahnhof, Ludwigshafen (Rhein), Gehzeit: 7 min
- S-Bahn, Ludwigstraße, Gehzeit: 1 min
- Bus, Ludwigstraße, Gehzeit: 1 min
- Flughafen, Frankfurt, Fahrzeit: 50 min
- Bundesautobahn, 650, Fahrzeit: 6 min
- Bundesautobahn, 61, Fahrzeit: 14 min
Ihr Kontakt

Konstantinos Krikelis
Ihr Kontakt




