Büros
ID F3009Aktualisiert
Büroimmobilie - Wiesbaden, Nordenstadt - F3009
Nordenstadt, 65205, Wiesbaden, Hessen
Provisionspflichtig: bei Anmietung 4 Netto-Monatsmieten zzgl. gesetzlicher Umsatzsteuer.** der Wert kann je nach Vertragslaufzeit variieren.
Kontaktieren Sie uns für den Preis
- Fläche227 m²
- VerfügbarkeitSofort
- Objekt
- Ausstattung
- Lage und Verkehrsanbindung
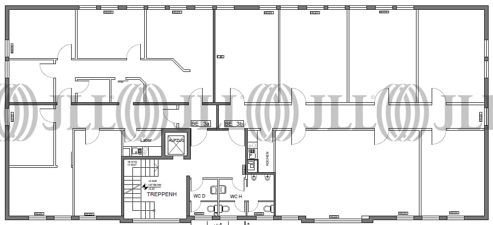
- Grundriss
- Exposé herunterladen
- Ihr Kontakt
- Anfrage senden
Objekt
Die Büroflächen werden über einen ebenerdigen Eingangsbereich mit Personenaufzug erschlossen. Die Räumlichkeiten wurden renoviert und mit hochwertigem Vinylboden und einer modernen Küche ausgestattet. Die vakanten Flächen zeichnen sich durch effiziente Grundrisse aus und können nahezu beliebig aufgeteilt werden.
Verfügbare Fläche
Lage und Verkehrsanbindung
- Flughafen, Frankfurt am Main, Fahrzeit: 13 min
- Bundesautobahn, A 66, Fahrzeit: 2 min
- Bundesautobahn, A 3, Fahrzeit: 5 min
- Bundesstraße, B 455, Fahrzeit: 4 min
- Bundesstraße, B 54, Fahrzeit: 5 min
- Hauptbahnhof, Wiesbaden , Fahrzeit: 18 min
Ihr Kontakt

Christian Lütter
Ihr Kontakt



