Büros
ID F2868Büroimmobilie - Neu-Isenburg - F2868
63263, Neu-Isenburg, Hessen
Provisionspflichtig: bei Anmietung 4 Netto-Monatsmieten zzgl. gesetzlicher Umsatzsteuer.** der Wert kann je nach Vertragslaufzeit variieren.
6 € / m²
- Fläche350 - 1.539 m²
- VerfügbarkeitSofort
- Objekt
- Ausstattung
- Lage und Verkehrsanbindung
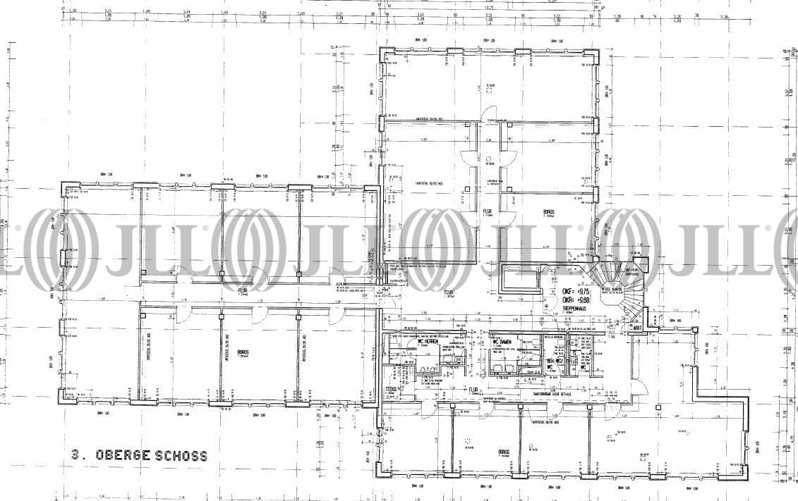
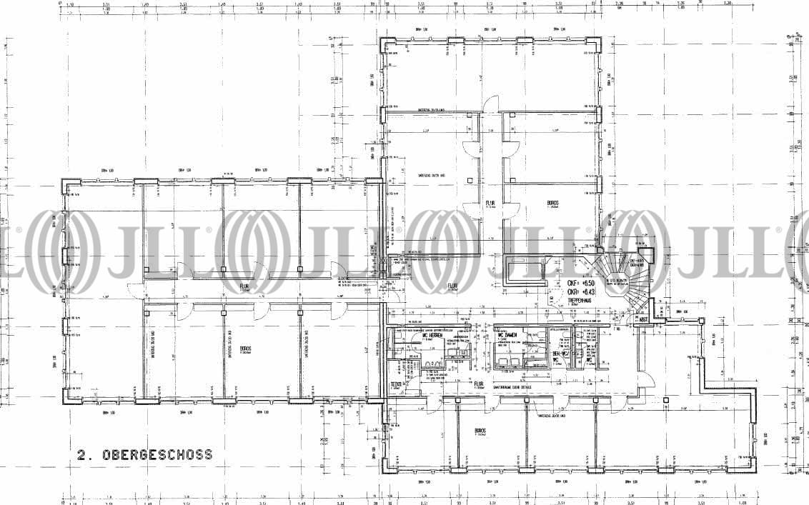
- Grundrisse
- Exposé herunterladen
- Ihr Kontakt
- Anfrage senden
Objekt
Bei der Liegenschaft handelt es sich um ein sehr gepflegtes 4-geschossiges Bürogebäude. Der Hauptzugang erfolgt über die repräsentative Eingangshalle. Die einzelnen Geschosse sind entweder über die Treppenanlage oder über den 9-Personen-Aufzug zu erreichen.
Zertifizierungen
Energieausweis
Für diese Liegenschaft liegt ein Verbrauchsausweis vom 2009-04-09 vom Eigentümer/Vermieter vor. Der wesentliche Energieträger der Liegenschaft ist Erdgas leicht. Der Endenergieverbrauch Strom beträgt 29.00 kWh/(m²*a). Der Endenergieverbrauch Wärme beträgt 105.00 kWh/(m²*a).Verfügbare Fläche
Lage und Verkehrsanbindung
Das Objekt liegt im Gewerbegebiet West von Neu-Isenburg und hat eine gute Anbindung an die BAB 3 (Frankfurt-Würzburg), das Frankfurter Kreuz (BAB 5 Frankfurt-Basel) sowie an die BAB 661 (Frankfurt-Darmstadt). Eine Buslinie zum S-Bahnhof Neu-Isenburg befindet sich in unmittelbarer Nähe.
- Flughafen, Frankfurt am Main, Fahrzeit: 15 min
- Bundesautobahn, A 661, Fahrzeit: 8 min
- Bundesautobahn, A 3, Fahrzeit: 8 min
- Bus, Bushaltestelle Bahnhof Neu-Isenburg Buslinien 53, 67, Gehzeit: 5 min
Ihr Kontakt

Tim von Leliwa
Ihr Kontakt







