Büros
ID F2814Büroimmobilie - Mainz, Hechtsheim - F2814
Hechtsheim, 55129, Mainz, Rheinland-Pfalz
Provisionspflichtig: bei Anmietung 4 Netto-Monatsmieten zzgl. gesetzlicher Umsatzsteuer.** der Wert kann je nach Vertragslaufzeit variieren.
13,50 € / m²
- Fläche500 m²
- VerfügbarkeitSofort
- Objekt
- Ausstattung
- Lage und Verkehrsanbindung
- Grundrisse
- Exposé herunterladen
- Ihr Kontakt
- Anfrage senden
Objekt
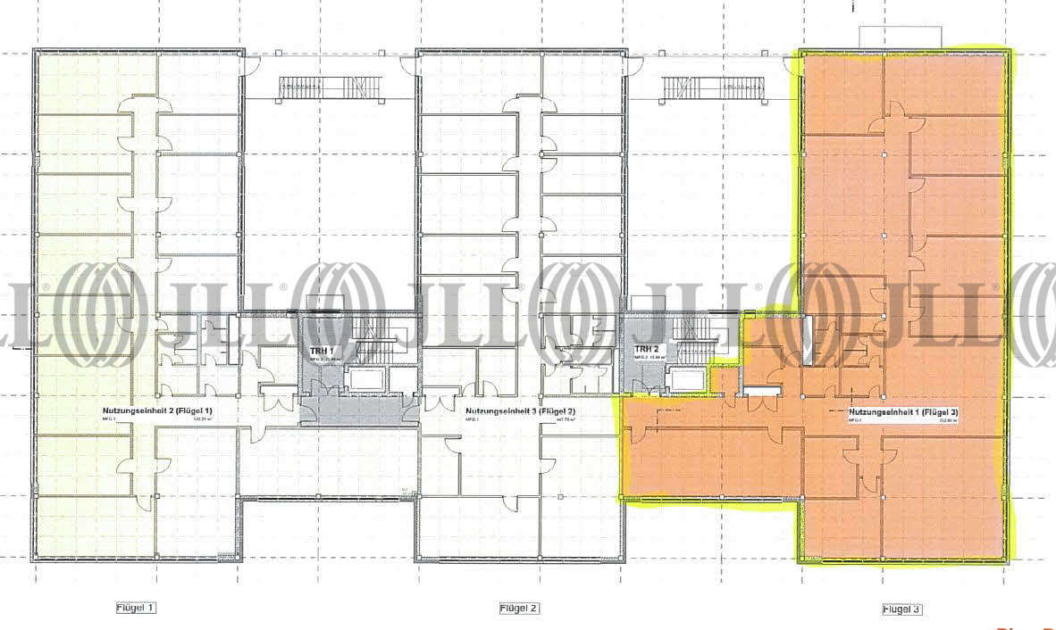
Das viergeschossige Bürogebäude besteht aus drei Gebäudeflügeln mit zwischenliegenden Innenhöfen und bietet einen Nutzungsfläche von ca. 6.000 m². Die einzelnen Gebäudeflügel sind über das zentrale Foyer und den beiden Treppenhäuser miteinander verbunden. Im Untergeschoss befindet sich eine Tiefgarage, sowie Keller- und Lagerräume. Die Grundrissgestaltung der oberen Geschosse ist variabel, sodass eine Nutzung als Großraumbüro, Zellenbüro oder Kombibüro möglich ist. Ebenso kann die Büroausstattung und die Raumplanung individuell auf die Interessen des Mieters angepasst werden. Neben den Stellplätzen in der Tiefgarage sind rund 150 Parkplätze auf dem Außengelände vorgesehen.
Zertifizierungen
Energieausweis
Für diese Liegenschaft liegt ein Bedarfsausweis vom 2020-07-10 vom Eigentümer/Vermieter vor. Die wesentlichen Energieträger der Liegenschaft sind Strom,Erdgas leicht. Der Endenergiebedarf Strom beträgt 46.00 kWh/(m²*a). Der Endenergiebedarf Wärme beträgt 48.00 kWh/(m²*a).Verfügbare Fläche
Lage und Verkehrsanbindung
Eine Tankstelle befindet sich in der Nähe.
- Flughafen, Frankfurt am Main, Fahrzeit: 20 min
- Bundesautobahn, A 60, Fahrzeit: 5 min
- Bundesautobahn, A 63, Fahrzeit: 8 min
- Bundesstraße, B 9, Fahrzeit: 16 min
- Bundesstraße, B 420, Fahrzeit: 19 min
- Bundesstraße, B 43, Fahrzeit: 23 min
Ihr Kontakt

Dennis Arnold
Ihr Kontakt




