Büros
ID F2793Premium JLL
Provisionsfrei
Büroimmobilie - Mannheim, Innenstadt - F2793
Innenstadt, 68161, Mannheim, Baden-Württemberg
16 € - 17,50 € / m²
- Fläche95 - 1.507 m²
- VerfügbarkeitAuf Anfrage
- Objekt
- Ausstattung
- Lage und Verkehrsanbindung
- Grundrisse
- Exposé herunterladen
- Ihr Kontakt
- Anfrage senden
Objekt
+++ station-office-tower.de +++
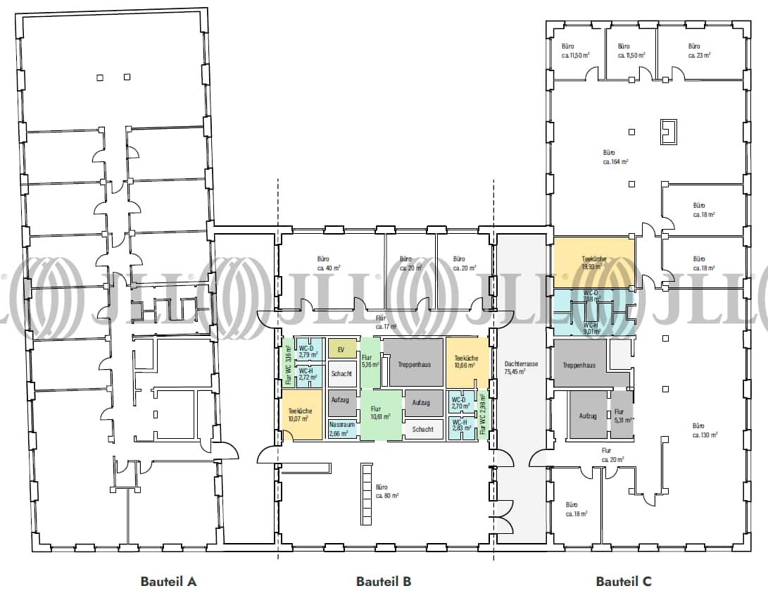
Der Station Office Tower (SOT) am Willy-Brandt-Platz 1-3 in Mannheim ist ein beeindruckendes Bürogebäude, das im Jahr 1995 vom renommierten Architekten Max Dudler entworfen wurde. Mit einer Gesamtfläche von 7.900 m² bietet das Gebäude ausreichend Büroflächen. Die Turmgeschosse bieten eine fantastische Aussicht auf den Wasserturm, die Innenstadt und das Glücksteinquartier, insbesondere auf den Victoria Turm. Das 5. Obergeschoss verfügt über eine Terrasse. Das Objekt besteht aus drei Bauteilen und ist komplett für den Büroausbau ausgestattet, einschließlich Kühlgeräten und einer Teeküche. Außerdem bietet der Station Office Tower eine hauseigene Tiefgarage. Mit seiner herausragenden Lage, dem atemberaubenden Ausblick und der hochwertigen Ausstattung ist er die ideale Wahl für Unternehmen auf der Suche nach einem erstklassigen Bürostandort.
Zum aktuellen Zeitpunkt sind außerdem flexible Mietvertragslaufzeiten möglich, eine Anmietung ist bereits ab einer Mindestlaufzeit von zwölf Monaten möglich!
Kommen Sie bei Fragen oder Anregungen gerne für einen Austausch auf uns zu.
Der Station Office Tower (SOT) am Willy-Brandt-Platz 1-3 in Mannheim ist ein beeindruckendes Bürogebäude, das im Jahr 1995 vom renommierten Architekten Max Dudler entworfen wurde. Mit einer Gesamtfläche von 7.900 m² bietet das Gebäude ausreichend Büroflächen. Die Turmgeschosse bieten eine fantastische Aussicht auf den Wasserturm, die Innenstadt und das Glücksteinquartier, insbesondere auf den Victoria Turm. Das 5. Obergeschoss verfügt über eine Terrasse. Das Objekt besteht aus drei Bauteilen und ist komplett für den Büroausbau ausgestattet, einschließlich Kühlgeräten und einer Teeküche. Außerdem bietet der Station Office Tower eine hauseigene Tiefgarage. Mit seiner herausragenden Lage, dem atemberaubenden Ausblick und der hochwertigen Ausstattung ist er die ideale Wahl für Unternehmen auf der Suche nach einem erstklassigen Bürostandort.
Zum aktuellen Zeitpunkt sind außerdem flexible Mietvertragslaufzeiten möglich, eine Anmietung ist bereits ab einer Mindestlaufzeit von zwölf Monaten möglich!
Kommen Sie bei Fragen oder Anregungen gerne für einen Austausch auf uns zu.
Zertifizierungen
Energieausweis
Für diese Liegenschaft liegt ein Verbrauchsausweis vom 20.10.2014 vom Eigentümer/Vermieter vor. Der wesentliche Energieträger der Liegenschaft ist Fernwärme. Der Endenergieverbrauch Strom beträgt 29.00 kWh/(m²*a). Der Endenergieverbrauch Wärme beträgt 79.00 kWh/(m²*a).Verfügbare Fläche
Lage und Verkehrsanbindung
Die Mannheimer Innenstadt setzt sich aus den charakteristischen Quadraten, dem Jungbusch sowie dem Handelshafen, als ältestem der vier Teile des Mannheimer Hafens zusammen. Die Hauptverkehrsachsen bilden die Fußgängerzonen "Planken" und "Breite Straße" mit ihren Parallelstraßen "Kunststraße" und "Fressgasse", sowie der Luisenring, welcher die Quadrate umgibt. Die Mannheimer Innenstadt beheimatet diverse Einzelhändler, Gastronomieeinrichtungen und weitere vielfältige, sowie namhafte Unternehmen. Des Weiteren befindet sich hier der Mannheimer Hauptbahnhof und angrenzend das Mannheimer "Glückstein-Quartier", in dem viele große Unternehmen wie EY, KPMG und Hays ihren Sitz haben. Des Weiteren wird hier ein breites Freizeitangebot und ein hervorragendes ÖPNV-Netz geboten.
- Hauptbahnhof, Mannheim HBF, Gehzeit: 1 min
- Straßenbahn/Tram, Mannheim HBF, Gehzeit: 1 min
- Bus, Bushaltestelle Mannheim HBF Buslinien 1,60, E, Gehzeit: 1 min
- Bundesautobahn, A 650, Fahrzeit: 10 min
- Bundesautobahn, A 6, Fahrzeit: 10 min
- Flughafen, Frankfurt am Main, Fahrzeit: 46 min
Ihr Kontakt

Konstantinos Krikelis
Ihr Kontakt




