Büros
ID F2749Aktualisiert
Büroimmobilie - Mannheim, Innenstadt - F2749
Innenstadt, 68161, Mannheim, Baden-Württemberg
Provisionspflichtig: bei Anmietung 3 Netto-Monatsmieten zzgl. gesetzlicher Umsatzsteuer.** der Wert kann je nach Vertragslaufzeit variieren.
Kontaktieren Sie uns für den Preis
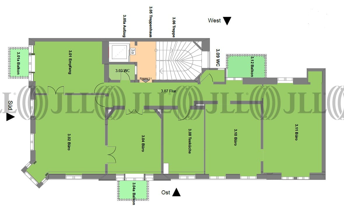
- Fläche186 - 278 m²
- VerfügbarkeitAuf Anfrage
- Ausstattung
- Lage und Verkehrsanbindung
- Grundriss
- Exposé herunterladen
- Ihr Kontakt
- Anfrage senden
Verfügbare Fläche
Lage und Verkehrsanbindung
Mannheim/ Innenstadt Die Mannheimer Innenstadt besteht aus den Quadraten, dem Jungbusch sowie dem Handelshafen, als ältestem der vier Teile des Mannheimer Hafens. Die wichtigsten Straßen in der Innenstadt, in denen sich die meisten Geschäfte befinden, sind die Planken, die Kunststraße, die Fressgasse und dazu senkrecht die Breite Straße. Die Innenstadt beheimatet die meisten Unternehmen. Rund um den Hauptbahnhof Mannheim haben die Unternehmen KPMG, Hays und das ZEW ihren Sitz. Das neu errichtete Stadtquartier Q 6 Q 7 in den gleichnamigen Quadraten bietet neben zahlreichen Shopping Möglichkeiten auch ein breitgefächertes Angebot an Gastronomie. Dienstleister des täglichen Bedarfs befinden sich in der Nähe.
- Flughafen, Frankfurt am Main, Fahrzeit: 46 min
- Bundesautobahn, A 656, Fahrzeit: 9 min
- Bundesautobahn, A 6, Fahrzeit: 10 min
- Bus, Bushaltestelle MA Hauptbahnhof Buslinien 7, 60, Gehzeit: 3 min
- Hauptbahnhof, Hauptbahnhof, Gehzeit: 6 min
Ihr Kontakt

Nezehat Capan
Ihr Kontakt









