Büros
ID F2401Büroimmobilie - Frankfurt am Main, Fechenheim - F2401
Fechenheim, 60386, Frankfurt am Main, Hessen
Provisionspflichtig: bei Anmietung 4 Netto-Monatsmieten zzgl. gesetzlicher Umsatzsteuer.** der Wert kann je nach Vertragslaufzeit variieren.
6,99 € / m²
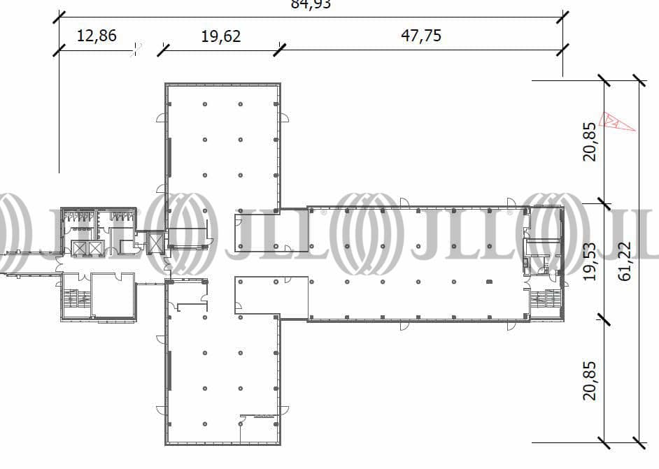
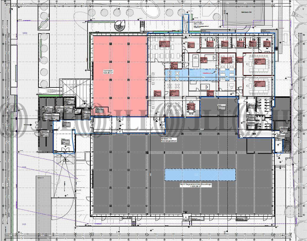
- Fläche413 - 8.692 m²
- VerfügbarkeitAuf Anfrage
- Objekt
- Ausstattung
- Lage und Verkehrsanbindung
- Grundrisse
- Exposé herunterladen
- Ihr Kontakt
- Anfrage senden
Objekt
Bei der Liegenschaft handelt es sich um einen 8-geschossiges Gebäude. Das Objekt wurde im Jahr 2006 aufwendig modernisiert. Im Zuge dieser Modernisierung wurden Heizung, Kühlung (VRF-System), Belüftung, innenliegender Sonnenschutz, Elektrik und CAT 5-Verkabelung erneuert.
Verfügbare Fläche
Lage und Verkehrsanbindung
- Flughafen, Frankfurt am Main, Fahrzeit: 17 min
- Bundesautobahn, A 66, Fahrzeit: 8 min
- Bundesautobahn, A 661, Fahrzeit: 10 min
- Bus, Bushaltestelle Hugo-Junkers-Straße Buslinien 41, 560, n61, Gehzeit: 3 min
Ihr Kontakt

Tim von Leliwa
Ihr Kontakt





