Büros
ID F2400Büroimmobilie - Frankfurt am Main, Nieder-Eschbach - F2400
Nieder-Eschbach, 60437, Frankfurt am Main, Hessen
Provisionspflichtig: bei Anmietung 4 Netto-Monatsmieten zzgl. gesetzlicher Umsatzsteuer.** der Wert kann je nach Vertragslaufzeit variieren.
10,50 € / m²
- Fläche263 - 1.077 m²
- VerfügbarkeitSofort
- Objekt
- Ausstattung
- Lage und Verkehrsanbindung
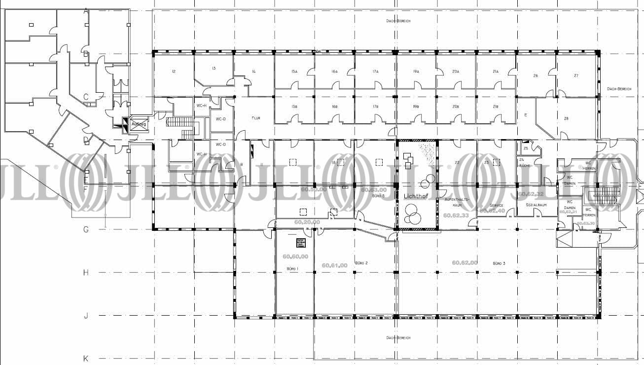
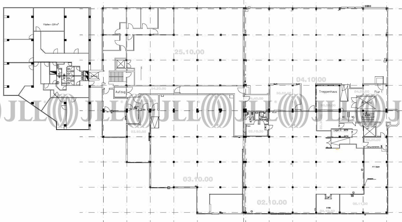
- Grundrisse
- Exposé herunterladen
- Ihr Kontakt
- Anfrage senden
Objekt
Das Objekt besteht aus zwei Gebäudeteilen, die vakanten Flächen befinden sich ausschließlich im 1967 errichteten Anbau zur Genfer Straße. Die großzügigen Flächen sind solide ausgestattet und können auf Wunsch flexibel geteilt werden.
Zertifizierungen
Energieausweis
Für diese Liegenschaft liegt ein Bedarfsausweis vom 2011-02-16 vom Eigentümer/Vermieter vor. Die wesentlichen Energieträger der Liegenschaft sind Strom,Erdgas leicht. Endenergiebedarf: 199.60000 kWh/(m²*a).Verfügbare Fläche
Lage und Verkehrsanbindung
- Flughafen, Frankfurt am Main, Fahrzeit: 20 min
- Bundesautobahn, A 661, Fahrzeit: 5 min
- Bundesautobahn, A 5, Fahrzeit: 10 min
- Bus, Bushaltestelle Genfer Straße, Berner Straße Buslinien 29, Gehzeit: 5 min
Ihr Kontakt

Lukas Battel
Ihr Kontakt


