Büros
ID F2376Provisionsfrei
Büroimmobilie - Mannheim, Innenstadt - F2376
Innenstadt, 68161, Mannheim, Baden-Württemberg
12,65 € / m²
- Fläche170 - 418 m²
- VerfügbarkeitAuf Anfrage
- Objekt
- Ausstattung
- Lage und Verkehrsanbindung
- Grundrisse
- Exposé herunterladen
- Ihr Kontakt
- Anfrage senden
Objekt
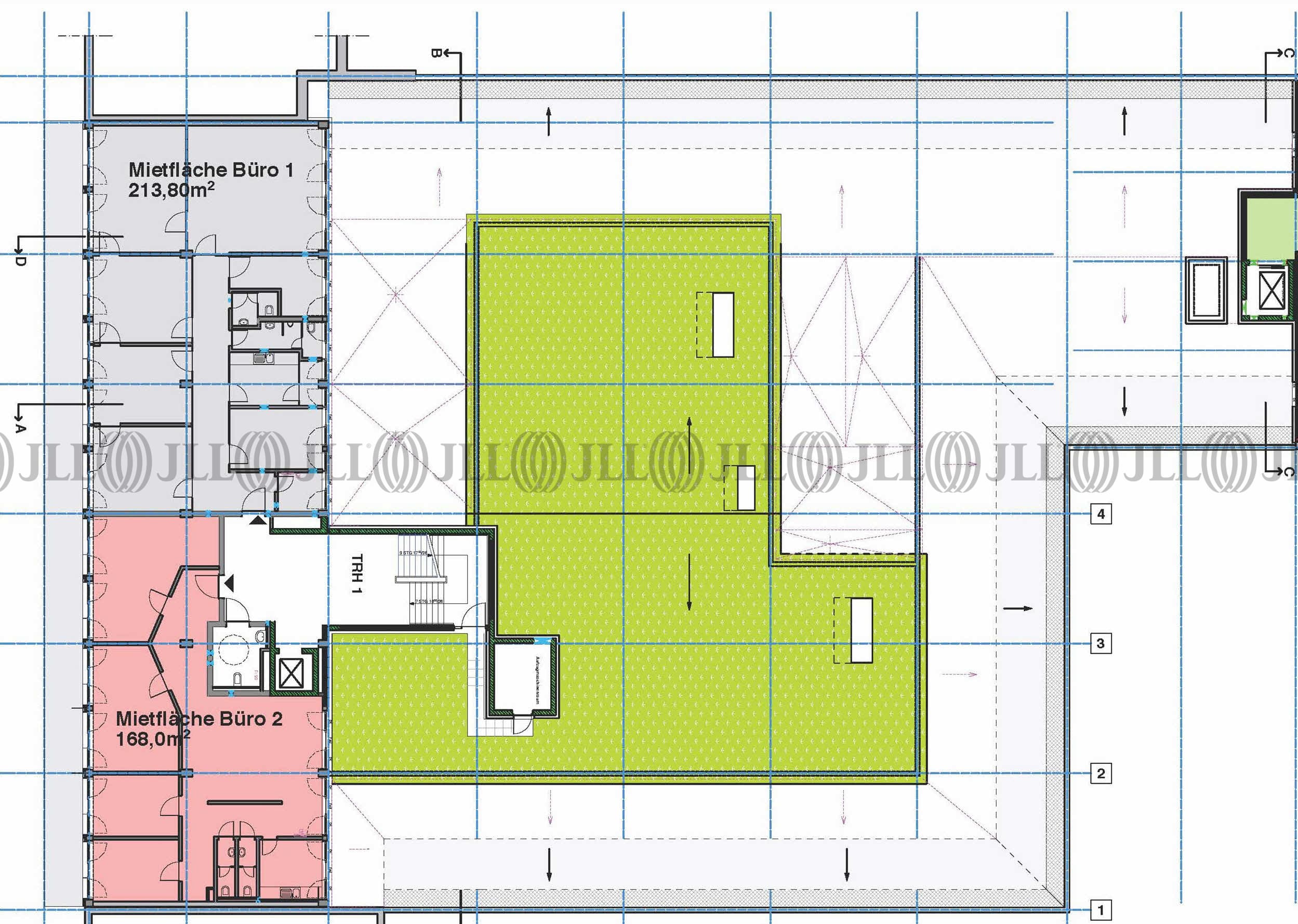
Das Büro- und Geschäftshaus befindet sich in 1-A-Citylage auf den Mannheimer Planken und unweit des Mannheimer Wahrzeichens - dem Wasserturm. Die Flächen wurden in den letzten Jahren umfassend renoviert und befinden sich auf einem modernen Standard. Zum aktuellen Zeitpunkt stehen rund 250 m² im 5. OG sowie rund 170 m² im 3. OG zur Verfügung.
Bei Fragen und Anregungen stehen wir jederzeit gerne für in persönliches Gespräch zur Verfügung.
Bei Fragen und Anregungen stehen wir jederzeit gerne für in persönliches Gespräch zur Verfügung.
Verfügbare Fläche
Lage und Verkehrsanbindung
Die Mannheimer Innenstadt setzt sich aus den charakteristischen Quadraten, dem Jungbusch sowie dem Handelshafen, als ältestem der vier Teile des Mannheimer Hafens zusammen. Die Hauptverkehrsachsen bilden die Fußgängerzonen "Planken" und "Breite Straße" mit ihren Parallelstraßen "Kunststraße" und "Fressgasse", sowie der Luisenring, welcher die Quadrate umgibt. Die Mannheimer Innenstadt beheimatet diverse Einzelhändler, Gastronomieeinrichtungen und weitere vielfältige, sowie namhafte Unternehmen. Des Weiteren befindet sich hier der Mannheimer Hauptbahnhof und angrenzend das Mannheimer "Glückstein-Quartier", in dem viele große Unternehmen wie EY, KPMG und Hays ihren Sitz haben. Des Weiteren wird hier ein breites Freizeitangebot und ein hervorragendes ÖPNV-Netz geboten.
- Hauptbahnhof, Hauptbahnhof Mannheim, Gehzeit: 10 min
- Straßenbahn/Tram, Haltestelle Wasserturm, Gehzeit: 1 min
- Bus, Bushaltestelle Wasserturm Buslinien 60,63,64, Gehzeit: 1 min
- Bundesautobahn, A 6, Fahrzeit: 5 min
- Bundesautobahn, A 656, Fahrzeit: 5 min
- Flughafen, Frankfurt am Main, Fahrzeit: 50 min
Ihr Kontakt

Konstantinos Krikelis
Ihr Kontakt


