Büros
ID F2318Provisionsfrei
Büroimmobilie - Mannheim, Schwetzingerstadt - F2318
Schwetzingerstadt, 68165, Mannheim, Baden-Württemberg
18 € / m²
- Fläche477 - 1.729 m²
- VerfügbarkeitAuf Anfrage
- Objekt
- Ausstattung
- Lage und Verkehrsanbindung
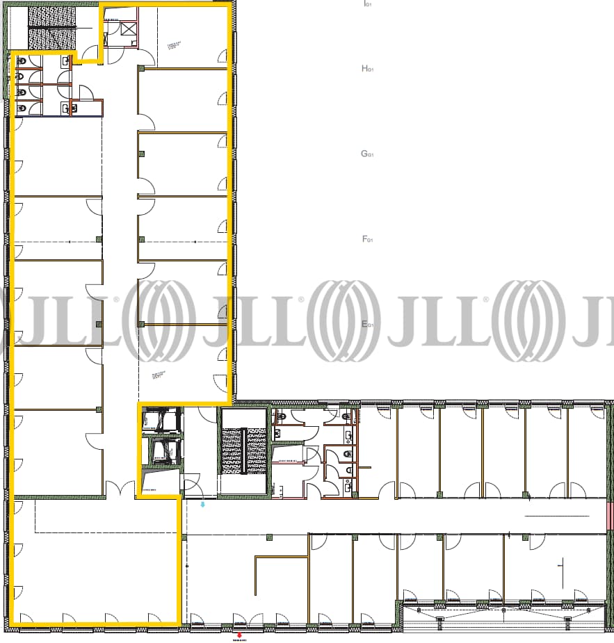
- Grundrisse
- Exposé herunterladen
- Ihr Kontakt
- Anfrage senden
Objekt
In begehrter Mannheimer Bahnhofslage befindet sich die moderne Büroimmobilie, die höchsten Ansprüchen gerecht wird. Die architektonisch ansprechende Fassade und das innovative Innenraumkonzept schaffen eine inspirierende Arbeitsumgebung. Mit einer großzügigen Gesamtfläche von ca. 1.300 Quadratmetern bietet das Gebäude ausreichend Platz für unterschiedliche Büroformate und Teams jeder Größe. Die unmittelbare Nähe zum Bahnhof ermöglicht eine hervorragende Anbindung an den öffentlichen Nahverkehr und gewährleistet somit eine bequeme Erreichbarkeit für Mitarbeiter und Geschäftspartner. Dieses Objekt ist die perfekte Wahl für Unternehmen, die modernes Design, eine erstklassige Lage und eine optimale Infrastruktur schätzen.
Zertifizierungen
Energieausweis
Für diese Liegenschaft liegt ein Bedarfsausweis vom 29.01.2018 vom Eigentümer/Vermieter vor. Der wesentliche Energieträger der Liegenschaft ist Fernwärme. Der Endenergiebedarf Strom beträgt 21.00 kWh/(m²*a). Der Endenergiebedarf Wärme beträgt 53.00 kWh/(m²*a).Verfügbare Fläche
Lage und Verkehrsanbindung
Der Stadtbezirk Schwetzingerstadt/Oststadt gilt als die beliebteste Wohngegend in Mannheim und beinhaltet mit der Christuskirche, dem Rosengarten und dem Luisenpark die meisten Sehenswürdigkeiten Mannheims. In der Mitte des Friedrichsplatzes erhebt sich der Mannheimer Wasserturm, das Wahrzeichen der Stadt. Direkt am Mannheimer Wasserturm erstreckt sich die Büromeile Augustaanlage. In der unmittelbaren Nähe haben Unternehmen wie LBBW, Südzucker und Inter Versicherung ihren Sitz. Unweit davon, auf dem ehemaligen Postareal, entstehen mit dem Kepler-Quartier und dem Post² gleich zwei neue Stadtquartiere unweit des Hauptbahnhofs. Erste Mieter der Quartiere sind Pöyry, Medizinischer Dienst der Krankenversicherung und Interhyp. Eine Tankstelle, sowie Dienstleister des täglichen Bedarfs befinden sich in der Nähe.
- Hauptbahnhof, Mannheim Hauptbahnhof, Gehzeit: 1 min
- Bus, Bushaltestelle Hauptbahnhof Buslinien 60,63,64,710, Gehzeit: 1 min
- Bundesautobahn, A 6, Fahrzeit: 7 min
- Bundesautobahn, A 656, Fahrzeit: 5 min
- Flughafen, Frankfurt am Main, Fahrzeit: 50 min
Ihr Kontakt

Konstantinos Krikelis
Ihr Kontakt

















