Büros
ID F2297Provisionsfrei
Aktualisiert
Büroimmobilie - Eschborn - F2297
65760, Eschborn, Hessen
13,50 € / m²
- Fläche186 m²
- Verfügbarkeit01.10.2025
- Objekt
- Ausstattung
- Lage und Verkehrsanbindung
- Grundriss
- Exposé herunterladen
- Ihr Kontakt
- Anfrage senden
Objekt
Das 6-geschossige Gebäude mit seiner historischen Backsteinfassade wurde revitalisiert und zu modernen Loft-Büros im Industrie-Stil umgewandelt. Durch Erhaltung der Bausubstanz bleibt die einzigartige Architektur des Bestandsobjekts bestehen.
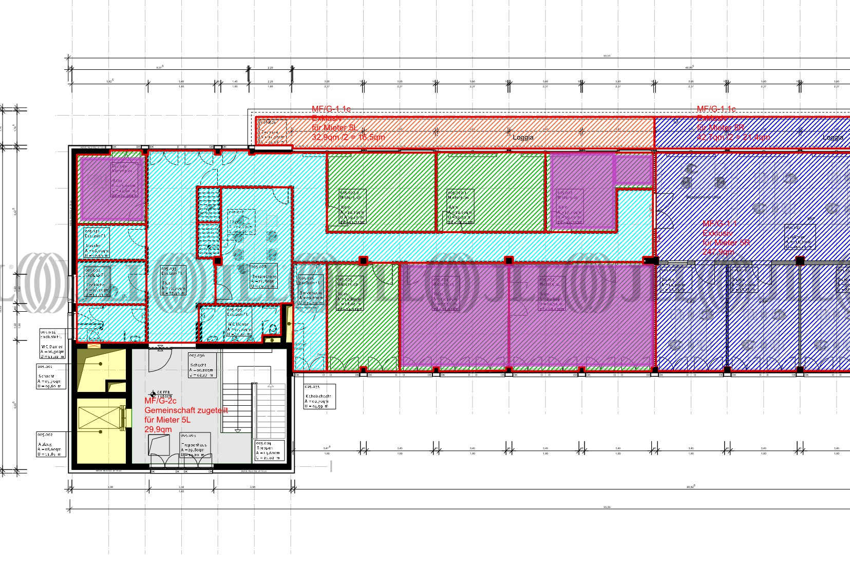
Verfügbare Fläche
Lage und Verkehrsanbindung
Das Gebäude liegt verkehrsgünstig im Gewerbegebiet Eschborn-Ost nahe dem Helfmann-Park. Die Anbindung an die Bundesautobahnen ist über die Schnellstraße L3005 optimal. In der Nachbarschaft gibt es zahlreiche Fachmärkte und Einkaufsmöglichkeiten, ebenso mehrere Restaurants und Hotels.
- Flughafen, Frankfurt am Main, Fahrzeit: 15 min
- Bundesautobahn, A 66, Fahrzeit: 5 min
- Bundesautobahn, A 5, Fahrzeit: 8 min
- S-Bahn, Eschborn Süd, Linie S3, S4, Gehzeit: 20 min
Ihr Kontakt

Dennis Arnold
Ihr Kontakt












