Büros
ID F2085Provisionsfrei
Aktualisiert
Büroimmobilie - Frankfurt am Main, Nordend-West - F2085
Nordend-West, 60322, Frankfurt am Main, Hessen
33 € / m²
- Fläche246 - 550 m²
- VerfügbarkeitSofort
- Objekt
- Ausstattung
- Lage und Verkehrsanbindung
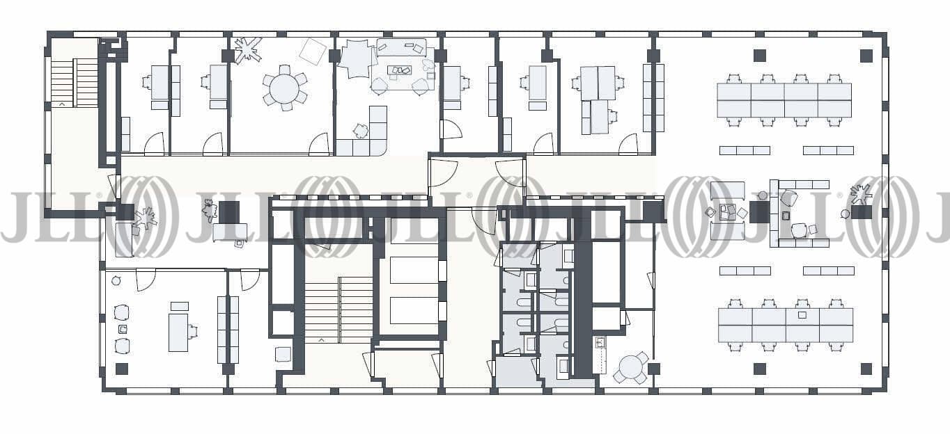
- Grundrisse
- Exposé herunterladen
- Ihr Kontakt
- Anfrage senden
Objekt
Bei der Liegenschaft handelt es sich um ein 22-geschossiges Bürohochhaus mit einem Zwischenbau zum Parkhaus (1.-6. OG), das umfangreich revitalisiert wurde. Die Revitalisierungsmaßnahme beinhaltet eine neue zweigeschossige Lobby und Arkade mit Ausrichtung zur Eschersheimer Landstraße sowie einem Verbindungsbau, welcher das Hochhaus mit dem Parkhaus verbindet.
Stellplätze können im anliegenden Parkhaus des Turmcenters zu je 195,00 EUR/SP angemietet werden.
Stellplätze können im anliegenden Parkhaus des Turmcenters zu je 195,00 EUR/SP angemietet werden.
Zertifizierungen
Energieausweis
LEED: GoldFür diese Liegenschaft liegt ein Bedarfsausweis vom 06.06.2016 vom Eigentümer/Vermieter vor. Die wesentlichen Energieträger der Liegenschaft sind Erdwärme, Fernwärme, Nahwärme, Strom. Der Endenergiebedarf Strom beträgt 35.00 kWh/(m²*a). Der Endenergiebedarf Wärme beträgt 98.00 kWh/(m²*a).
Verfügbare Fläche
Lage und Verkehrsanbindung
- Bundesautobahn, A 66, Fahrzeit: 5 min
- Bundesautobahn, A 5, Fahrzeit: 10 min
- Bus, Eschenheimer Tor, Linie 36, Gehzeit: 4 min
- U-Bahn, Eschenheimer Tor, Linie U1, U2, U3, U8, Gehzeit: 4 min
- Flughafen, Frankfurt am Main, Fahrzeit: 17 min
- Hauptbahnhof, Frankfurt am Main, Fahrzeit: 7 min
Ihr Kontakt

Lukas Battel
Ihr Kontakt








