Büros
ID F2033Büroimmobilie - Speyer - F2033
67346, Speyer, Rheinland-Pfalz
Provisionspflichtig: bei Anmietung 3 Netto-Monatsmieten zzgl. gesetzlicher Umsatzsteuer.** der Wert kann je nach Vertragslaufzeit variieren.
Kontaktieren Sie uns für den Preis
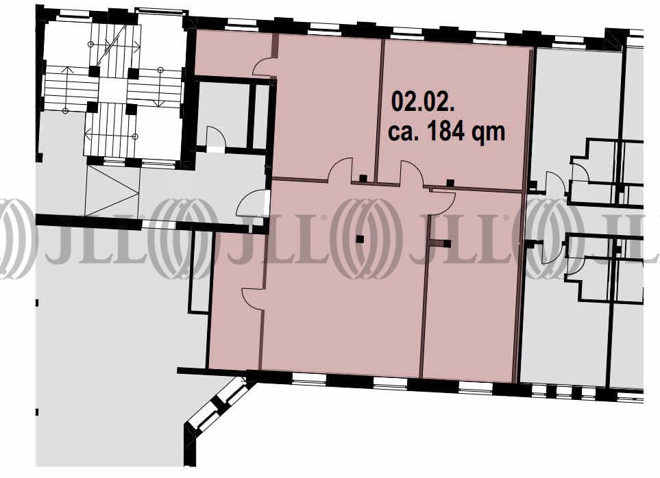
- Fläche184 - 1.571 m²
- VerfügbarkeitAuf Anfrage
- Ausstattung
- Lage und Verkehrsanbindung
- Grundriss
- Exposé herunterladen
- Ihr Kontakt
- Anfrage senden
Verfügbare Fläche
Lage und Verkehrsanbindung
Unmittelbar am Postplatz gelegen entstand aus dem ehemaligen, denkmalgeschützten Reichspostgebäude eine Immobilie, die Einzelhandel, Gastronomie & Büro verbindet. Dienstleister des täglichen Bedarfs befinden sich in der Nähe.
- Flughafen, Frankfurt am Main, Fahrzeit: 50 min
- Bundesautobahn, A 61, Fahrzeit: 10 min
- Bundesautobahn, A 6, Fahrzeit: 15 min
- Bus, Bushaltestelle Postplatz Buslinien 717, 578, 573, 572, Gehzeit: 1 min
Ihr Kontakt

Nezehat Capan
Ihr Kontakt








