Büros
ID F1994Provisionsfrei
Aktualisiert
Büroimmobilie - Ludwigshafen am Rhein, Süd - F1994
Süd, 67061, Ludwigshafen am Rhein, Rheinland-Pfalz
Kontaktieren Sie uns für den Preis
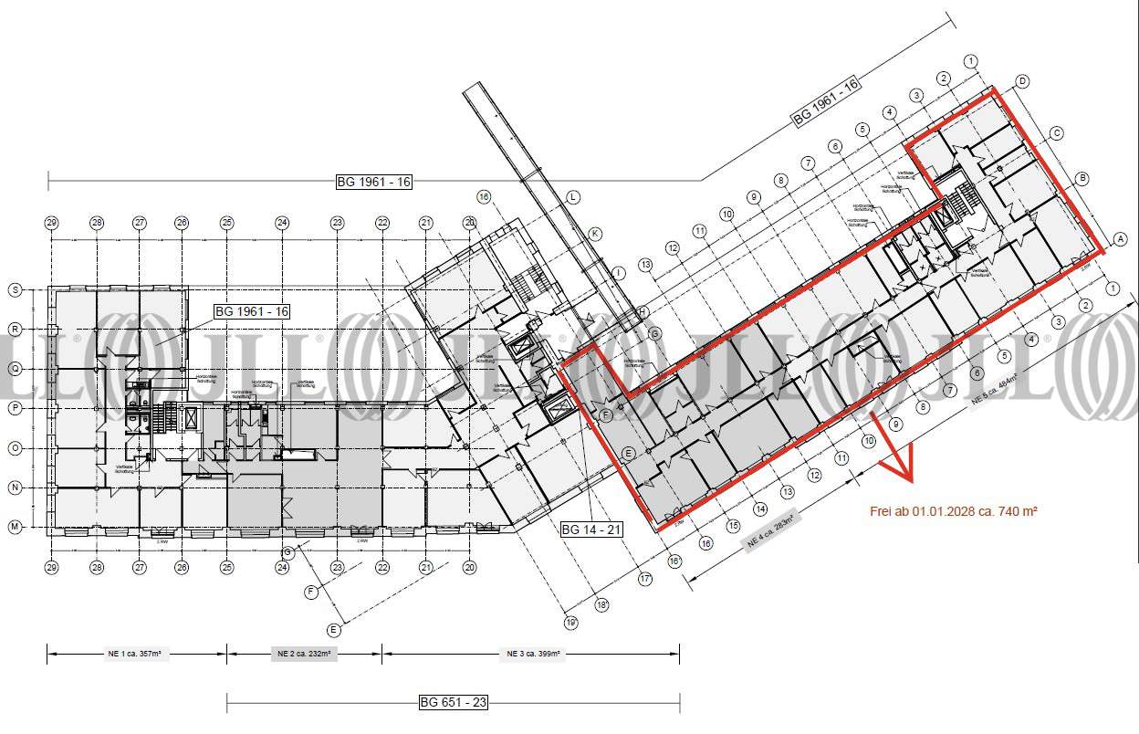
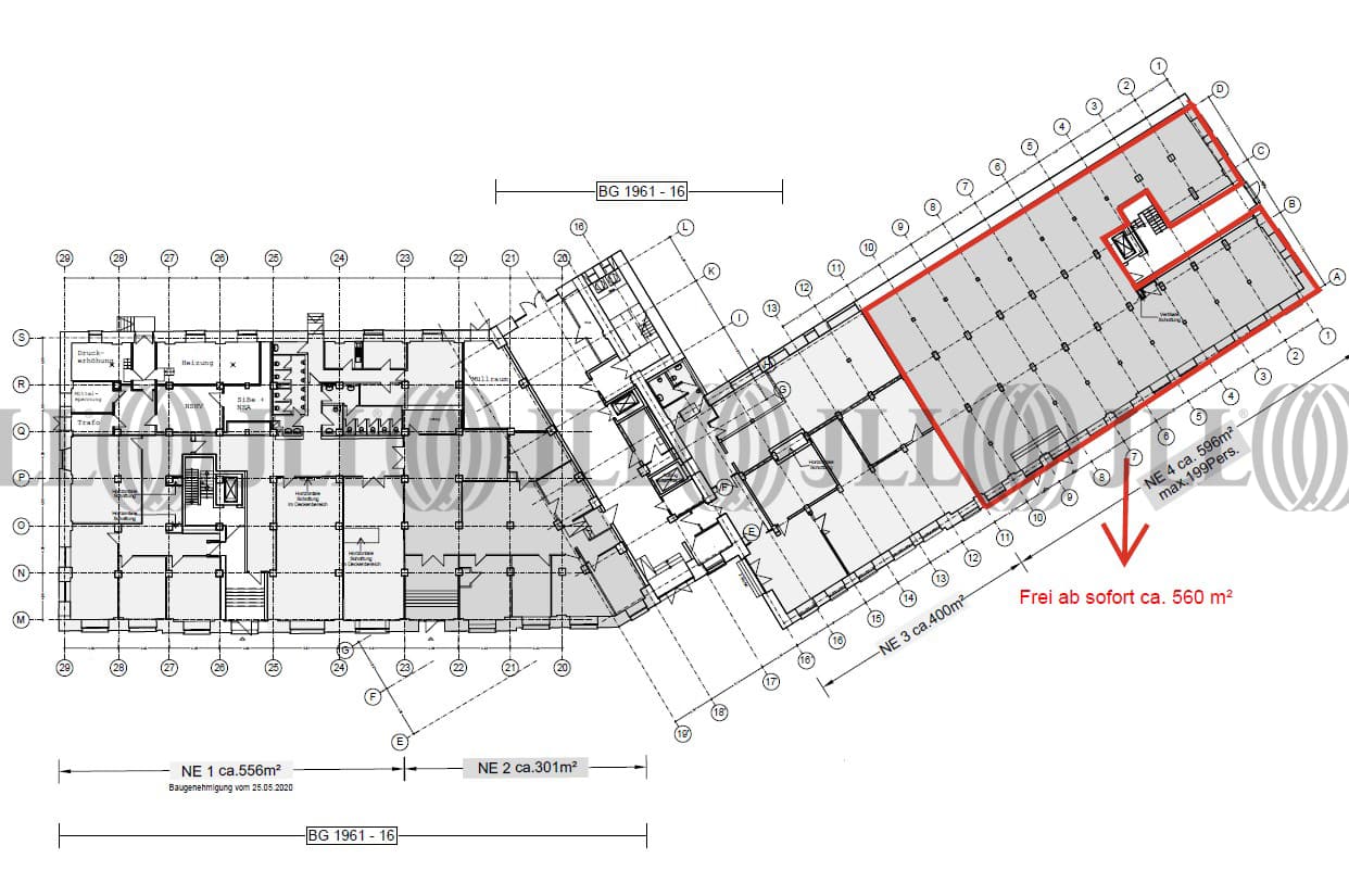
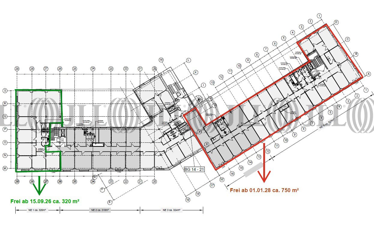
- Fläche105 - 2.475 m²
- VerfügbarkeitAuf Anfrage
- Ausstattung
- Lage und Verkehrsanbindung
- Grundrisse
- Exposé herunterladen
- Ihr Kontakt
- Anfrage senden
Verfügbare Fläche
Lage und Verkehrsanbindung
Ludwigshafen/ Rheinufer Süd: Der Teilmarkt Rheinufer Süd liegt südlich der Ludwigshafener Innenstadt. An dem Rheinufer sind in den letzten Jahren auf etwa 30 Hektar hochmoderne Büro- und Wohnkomplexe entstanden und bieten zeitgemäße Wohn- und Arbeitswelten mit Blick auf den Rhein. Der Bahnhof Ludwigshafen Mitte, trennt den Teilmarkt Süd von dem Teilmarkt Mitte und ist gleichzeitig mit dem direkt angrenzendem Berliner Platz der Hauptknotenpunkt der ÖPNV in Ludwigshafen. Neben der hervorragenden Nahverkehrsanbindung verfügt der Teilmarkt über eine direkte Anbindung an die B 38 und die B 37, die auf die A 650 übergeht. In dem Teilmarkt befinden sich bereits die Unternehmen BASF, Telekom und zukünftig auch der Sitz der Pronova BKK. Eine Tankstelle befindet sich in der Nähe. Dienstleister des täglichen Bedarfs befinden sich in der Nähe.
- Flughafen, Frankfurt am Main, Fahrzeit: 50 min
- Bundesautobahn, A 6, Fahrzeit: 13 min
- Bundesautobahn, A 650, Fahrzeit: 13 min
- Bus, Bushaltestelle Ludwigshafen Rhein Galerie Buslinien 75, 76,77, Gehzeit: 3 min
Ihr Kontakt

Konstantinos Krikelis
Ihr Kontakt





