Büros
ID F1926Provisionsfrei
Büroimmobilie - Mannheim, Oststadt - F1926
Oststadt, 68165, Mannheim, Baden-Württemberg
Kontaktieren Sie uns für den Preis
- Fläche333 - 1.272 m²
- VerfügbarkeitSofort
- Ausstattung
- Lage und Verkehrsanbindung
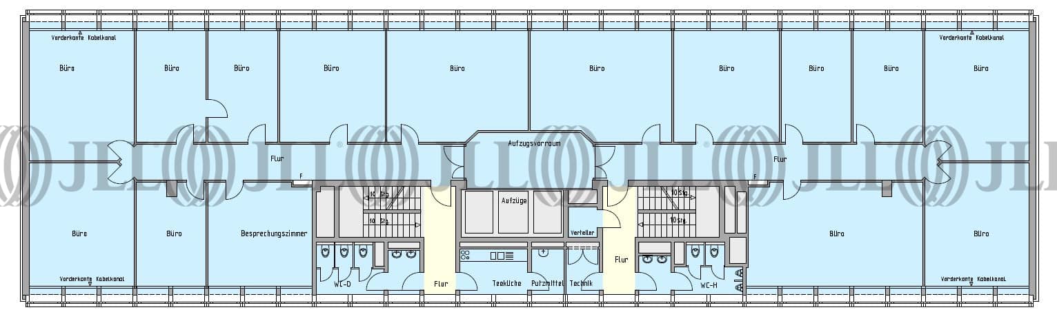
- Grundrisse
- Exposé herunterladen
- Ihr Kontakt
- Anfrage senden
Verfügbare Fläche
Lage und Verkehrsanbindung
Die Stadtteile „Oststadt“ und „Schwetzingervorstadt“ bilden gemeinsam mit der Hauptverkehrsachse „Augustaanlage“ die Stadteinfahrt Mannheims. Die Lage dieser Stadtteile profitiert von der Nähe zum Mannheimer Wahrzeichen „Wasserturm“, sowie der kurzen Erreichbarkeit der Autobahn. Auch das ÖPNV-Netz bietet hier ein breites Spektrum aus Bussen und Stadtbahnen. Entlang der Augustaanlage mit ihren jeweiligen Seitenstraßen haben sich viele renommierte Unternehmen aus verschiedensten Branchen niedergelassen. Eine optimale Nahversorgung wird hier durch diverse Einzel- und Lebensmittelhändler, sowie durch eine Vielzahl an gastronomischen Einrichtungen garantiert. In diesem Gebiet finden sich einige namhafte Unternehmen wieder; einige hiervon sind Südzucker und die Inter Versicherung.
- Hauptbahnhof, Mannheim (Linie: ICE, RB, RE, S-Bahn, TGV, etc.), Fahrzeit: 7 min
- Straßenbahn/Tram, Haltestelle Planetarium, Gehzeit: 3 min
- Bus, Bushaltestelle Kunstverein Buslinien 63,64, Gehzeit: 4 min
- Bundesautobahn, A 6, Fahrzeit: 3 min
- Bundesautobahn, A 656, Fahrzeit: 3 min
- Flughafen, Frankfurt am Main, Fahrzeit: 50 min
Ihr Kontakt

Konstantinos Krikelis
Ihr Kontakt
Marktinformationen
Mietmarkt
Oststadt, Mannheim
siehe 13 passende MietobjekteErfahren Sie mehr
* Durchschnittspreis auf Grundlage historischer Transaktionen.














