Büros
ID F1888Aktualisiert
Büroimmobilie - Frankfurt am Main, Gallusviertel - F1888
Gallusviertel, 60326, Frankfurt am Main, Hessen
Provisionspflichtig: bei Anmietung 4 Netto-Monatsmieten zzgl. gesetzlicher Umsatzsteuer.** der Wert kann je nach Vertragslaufzeit variieren.
10 € / m²
- Fläche173 - 246 m²
- VerfügbarkeitSofort
- Objekt
- Ausstattung
- Lage und Verkehrsanbindung
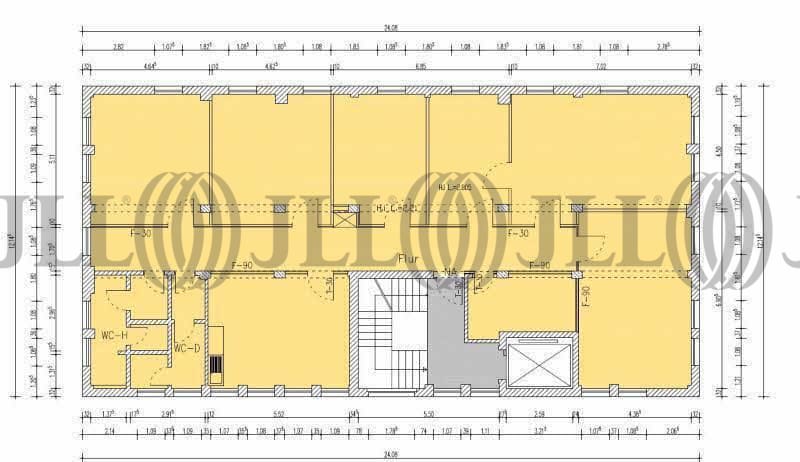
- Grundriss
- Exposé herunterladen
- Ihr Kontakt
- Anfrage senden
Objekt
Die Liegenschaft besteht aus Verwaltungs-, Werkstatt- und Lagergebäuden. Die heutige Mieterschaft stellt einen Branchen-Mix dar, z. B. mit Unternehmen aus der Telekommunikation, aus dem Bereich Multimedia und technische Dienstleister.
Zertifizierungen
Energieausweis
Für diese Liegenschaft liegt ein Verbrauchsausweis vom 18.11.2020 vom Eigentümer/Vermieter vor. Die wesentlichen Energieträger der Liegenschaft sind Erdgas leicht, Strom. Der Endenergieverbrauch Strom beträgt 1173.50 kWh/(m²*a). Der Endenergieverbrauch Wärme beträgt 53.20 kWh/(m²*a).Verfügbare Fläche
Lage und Verkehrsanbindung
- Flughafen, Frankfurt am Main, Fahrzeit: 17 min
- Bundesautobahn, A 648, Fahrzeit: 10 min
- Bundesautobahn, A 5, Fahrzeit: 15 min
- Bus, Schmidtstraße, Linie 33, 34, Gehzeit: 3 min
- Straßenbahn/Tram, Wickerer Straße, Linie 11, 21, Gehzeit: 7 min
- Hauptbahnhof, Frankfurt am Main, Fahrzeit: 12 min
Ihr Kontakt

Isha Pundir
Ihr Kontakt


