Büros
ID F1853Provisionsfrei
Büroimmobilie - Heidelberg, Bahnstadt - F1853
Bahnstadt, 69115, Heidelberg, Baden-Württemberg
Kontaktieren Sie uns für den Preis
- Fläche592 - 1.263 m²
- VerfügbarkeitAuf Anfrage
- Objekt
- Ausstattung
- Lage und Verkehrsanbindung
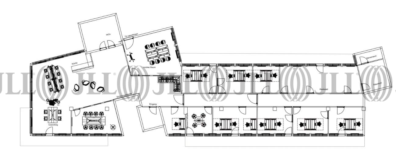
- Grundrisse
- Exposé herunterladen
- Ihr Kontakt
- Anfrage senden
Objekt
Die aktuell freien Büroflächen im CONVECS sind helle und freundliche Büroeinheiten, die sich individuell nach Mieterwunsch aufteilen lassen. Des Weiteren können branchenspezifische Anforderungen an die Büroflächen realisiert werden. Bei Bedarf ist eine Klimatisierung der Bürofläche möglich. Das CONVECS befindet sich in Hauptbahnhofsnähe und bietet eine gute Verkehrsanbindung sowohl mit dem Auto, als auch mit dem Fahrrad und den öffentlichen Verkehrsmitteln. Den Mietern stehen ausreichend Stellplätze in der objekteigenen Tiefgarage zur Verfügung.
Verfügbare Fläche
Lage und Verkehrsanbindung
Heidelberg/ Bahnstadt: Die Bahnstadt ist Heidelbergs neuester Stadtteil und befindet sich nur wenige Gehminuten vom Heidelberger Hauptbahnhof entfernt. Der gesamte Stadtteil wird nach Passivhaus-Standards errichtet und bildet nach Fertigstellung die weltweit größte Passivhaussiedlung. In dem gesamten Stadtteil sind mehrere repräsentative und hochmoderne Bürokomplexe entstanden wie zum Beispiel das SkyLabs- und das SkyAngle. Die Entwicklung des Stadtteils ist jedoch bei weitem noch nicht abgeschlossen. Derzeit befinden sich ein neues Konferenzzentrum und ein vier Sterne Hotel in Planung, sowie weitere Bürokomplexe und ein Kino mit 15 Sälen im Bau. Des Weiteren profitiert der Stadtteil von der Nähe des Heidelberger Hauptbahnhofs sowie der guten Anbindung über die Speyererstraße sowohl in Richtung der A 5 als auch in Richtung Stadtzentrum. In dem Stadtteil haben sich bereits Unternehmen wie SNP, Reckitt Benckiser und Heidelberg Engineering niedergelassen.
- Flughafen, Frankfurt am Main, Fahrzeit: 55 min
- Bundesautobahn, A 5, Fahrzeit: 8 min
- Bundesautobahn, A 656, Fahrzeit: 8 min
- Bus, Speyere Straße, Linie 720, Gehzeit: 1 min
- Hauptbahnhof, Heidelberg, Fahrzeit: 2 min
- Hauptbahnhof, Heidelberg, Gehzeit: 8 min
Ihr Kontakt

Nezehat Capan
Ihr Kontakt






