Büros
ID F1834Provisionsfrei
Aktualisiert
Büroimmobilie - Mannheim, Neckarstadt-Ost - F1834
Neckarstadt-Ost, 68167, Mannheim, Baden-Württemberg
10 € / m²
- Fläche168 - 2.811 m²
- VerfügbarkeitAuf Anfrage
- Objekt
- Ausstattung
- Lage und Verkehrsanbindung
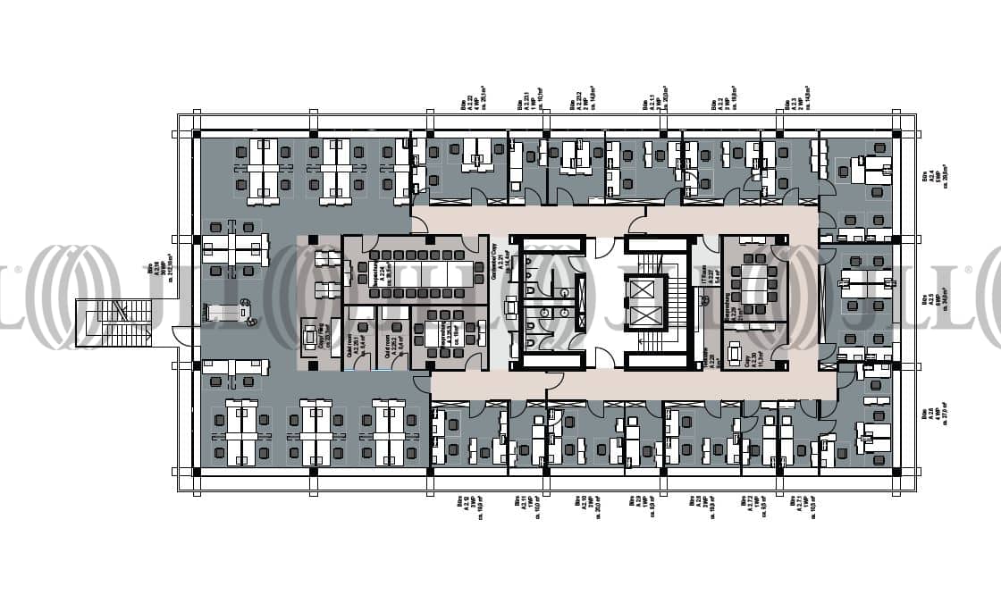
- Grundriss
- Exposé herunterladen
- Ihr Kontakt
- Anfrage senden
Objekt
Das modern gestaltete Entrée des Gebäudes sowie die großzügige Vorfahrt macht diese Liegenschaft zu einem repräsentativem Standort für Unternehmen jeder Art.
Zertifizierungen
Energieausweis
Für diese Liegenschaft liegt ein Verbrauchsausweis vom 20.02.2013 vom Eigentümer/Vermieter vor. Der wesentliche Energieträger der Liegenschaft ist Heizwerk, fossil. Der Endenergieverbrauch Strom beträgt 108.00 kWh/(m²*a). Der Endenergieverbrauch Wärme beträgt 118.00 kWh/(m²*a).Verfügbare Fläche
Lage und Verkehrsanbindung
Mannheim/ Wohlgelegen Der Teilmarkt Mannheim Wohlgelegen liegt im Stadtteil Neckarstadt-Ost. Dort befinden sich neben dem größten Krankenhaus Mannheims, das Universitätsklinikum, der Sitz der Regionalen Zeitung „Mannheimer Morgen“ sowie die Sitze des privaten Radiosenders „Radio Regenbogen“ und des Fernsehsenders „RNF“. In dem Stadtteil entstehen auf dem Turley Areal neue Wohnungen und Büros nur unweit der Innenstadt entfernt. Das durch die Käfertalerstraße getrennte Gewerbegebiet verfügt über die B 38 und B 38a eine schnelle Anbindung an das Autobahnnetz A 6, A 656 und A 659. In dem Gewerbegebiet finden sich Unternehmen wie Westinghouse, BASF und die Firmenzentrale von Bauhaus.
- Flughafen, Frankfurt am Main, Fahrzeit: 50 min
- Bundesautobahn, A 5, Fahrzeit: 7 min
- Bundesautobahn, A 6, Fahrzeit: 5 min
- Bus, Bushaltestelle Dudenstraße Buslinien 61, Gehzeit: 1 min
- Hauptbahnhof, Mannheim HBF, Fahrzeit: 18 min
Ihr Kontakt

Konstantinos Krikelis
Ihr Kontakt









