Büros
ID F1800Büroimmobilie - Ludwigshafen am Rhein, Mitte - F1800
Mitte, 67059, Ludwigshafen am Rhein, Rheinland-Pfalz
Provisionspflichtig: bei Anmietung 3 Netto-Monatsmieten zzgl. gesetzlicher Umsatzsteuer.** der Wert kann je nach Vertragslaufzeit variieren.
12,50 € / m²
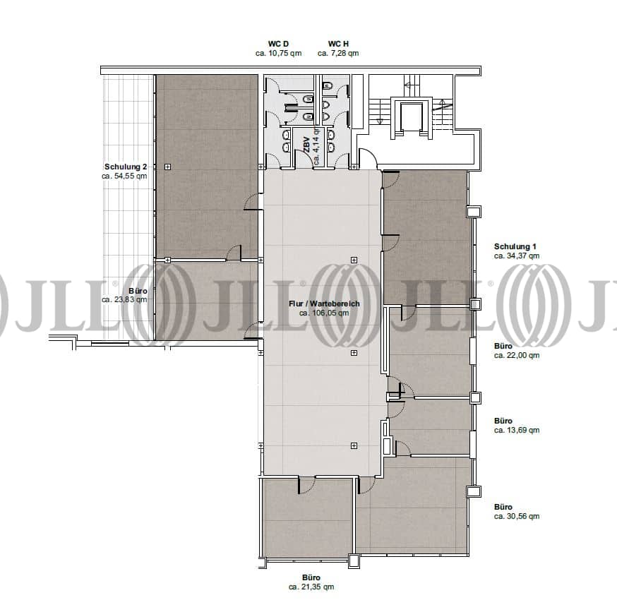
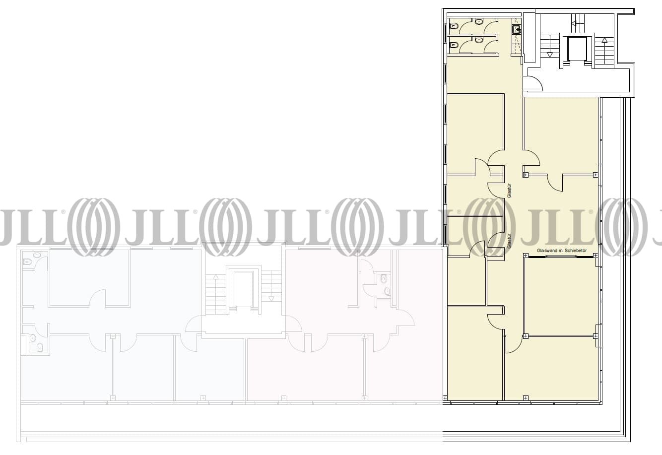
- Fläche134 - 316 m²
- VerfügbarkeitSofort
- Objekt
- Ausstattung
- Lage und Verkehrsanbindung
- Grundrisse
- Exposé herunterladen
- Ihr Kontakt
- Anfrage senden
Objekt
Das attraktive Geschäftshaus mit zeitloser Glasfassade und moderner Ausstattung bietet moderne Büroflächen. Die Mietflächen können bequem über einen Personenaufzug erreicht werden und bieten eine angenehme, helle Arbeitsatmosphäre. Stellplätze können in der hauseigenen Tiefgarage angemietet werden.
Bei Rückfragen stehen wir gerne für ein persönliches Gespräch zur Verfügung.
Bei Rückfragen stehen wir gerne für ein persönliches Gespräch zur Verfügung.
Zertifizierungen
Energieausweis
Für diese Liegenschaft liegt ein Verbrauchsausweis vom 18.07.2014 vom Eigentümer/Vermieter vor. Der wesentliche Energieträger der Liegenschaft ist KWK. Der Endenergieverbrauch Strom beträgt 80.70 kWh/(m²*a). Der Endenergieverbrauch Wärme beträgt 69.90 kWh/(m²*a).Verfügbare Fläche
Lage und Verkehrsanbindung
Ludwigshafen Mitte wird von den beiden Hochstraßen B 44 und B 37 im Nordwesten und im Süden und im Westen vom Rhein begrenzt. Das Zentrum hat sich in den letzten Jahren zum Rheinufer verschoben und bietet dort mit der Rhein-Galerie und einem neu gestaltetem Vorplatz eine Vielzahl an Geschäften des täglichen Bedarfs. Der Teilmarkt verfügt durch den Berliner Platz und den Bahnhof Mitte über eine hervorragende regionale als auch überregionale Anbindung an die öffentlichen Verkehrsmittel. Neben der hervorragenden Nahverkehrsanbindung verfügt Ludwigshafen Mitte über eine direkte Anbindung an die B 37, B 44 und B 38 sowie die A 650 und A 61. In diesem Teilmarkt befinden sich Unternehmen wie MLP, AbbVie sowie die Zentrale der Sparkasse Vorderpfalz. Eine Tankstelle befindet sich in der Nähe, sowie Dienstleister des täglichen Bedarfs befinden sich in der Nähe.
- Hauptbahnhof, Hauptbahnhof Ludwigshafen, Fahrzeit: 4 min
- Bus, Bushaltestelle Bismarckstraße Buslinien 571, 580, 581, Gehzeit: 1 min
- Bundesautobahn, A 650, Fahrzeit: 6 min
- Bundesautobahn, A 61, Fahrzeit: 6 min
- Flughafen, Frankfurt am Main, Fahrzeit: 50 min
Ihr Kontakt

Konstantinos Krikelis
Ihr Kontakt






