Büros
ID F1750Provisionsfrei
Aktualisiert
Büroimmobilie - Mannheim, Innenstadt - F1750
Innenstadt, 68161, Mannheim, Baden-Württemberg
Kontaktieren Sie uns für den Preis
- Fläche225 - 589 m²
- VerfügbarkeitAuf Anfrage
- Objekt
- Ausstattung
- Lage und Verkehrsanbindung
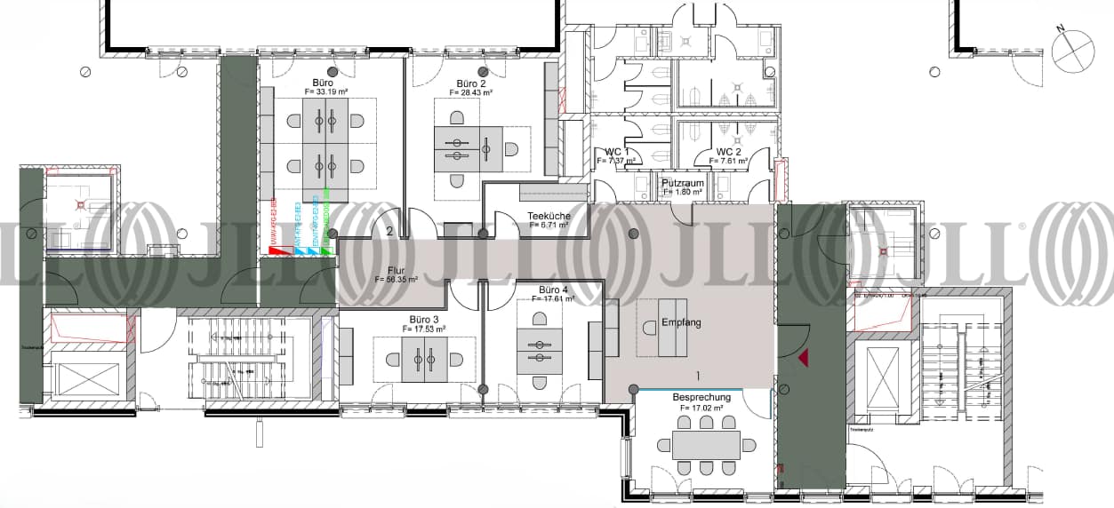
- Grundrisse
- Exposé herunterladen
- Ihr Kontakt
- Anfrage senden
Objekt
Die Büroflächen in Mannheims Stadtquartier überzeugen durch ihre eindrucksvolle, offen gegliederte Architektur. Besonders hervorzuheben sind die begrünten Innenhöfe, die trotz Innenstadtlage für lichtdurchflutete Arbeitsplätze mit angenehmer Atmosphäre sorgen.
Die Flächen verfügen über einen modernen Ausbau, teils mit Glastrennwänden. Des Weiteren umfasst die 225 m²-Fläche im 2. OG eine exklusive Terrasse auf den Innenhof im 2. OG.
Bei Fragen und Aregungen stehen wir jederzeit für ein Gespräch zur Verfügung.
Die Flächen verfügen über einen modernen Ausbau, teils mit Glastrennwänden. Des Weiteren umfasst die 225 m²-Fläche im 2. OG eine exklusive Terrasse auf den Innenhof im 2. OG.
Bei Fragen und Aregungen stehen wir jederzeit für ein Gespräch zur Verfügung.
Zertifizierungen
Energieausweis
DGNB: SilverFür diese Liegenschaft liegt ein Bedarfsausweis vom 07.11.2016 vom Eigentümer/Vermieter vor. Der wesentliche Energieträger der Liegenschaft ist Fernwärme. Der Endenergiebedarf Strom beträgt 84.40 kWh/(m²*a). Der Endenergiebedarf Wärme beträgt 83.80 kWh/(m²*a).
Verfügbare Fläche
Lage und Verkehrsanbindung
Innenstadt ist ein Stadtbezirk und Stadtteil von Mannheim, bestehend aus der Innenstadt, dem Jungbusch sowie dem Handelshafen als ältestem der vier Teile des Mannheimer Hafens. Die wichtigsten Straßen in der Innenstadt sind die Planken (Wasserturm-Achse), die Kunststraße und Fressgasse (die beiden nächsten Parallelstraßen zu den Planken) und dazu senkrecht die Breite Straße (Kurpfalzbrücke-Schloss-Achse). Sie sind zum einen die Hauptstraßen mit den meisten Geschäften und unterteilen andererseits die Innenstadt in vier große Bereiche, an die sich die Vorstädte jeweils anschließen. Dienstleister des täglichen Bedarfs befinden sich in der Nähe.
- Flughafen, Frankfurt am Main, Fahrzeit: 45 min
- Bundesautobahn, A 656, Fahrzeit: 7 min
- Bundesautobahn, A 5, Fahrzeit: 12 min
- Bundesautobahn, A 5, Fahrzeit: 12 min
- Bundesautobahn, A 6, Fahrzeit: 10 min
- Hauptbahnhof, Mannheim HBF, Gehzeit: 11 min
Ihr Kontakt

Konstantinos Krikelis
Ihr Kontakt




