Büros
ID F1690-1Büroimmobilie - Offenbach am Main - F1690-1
63065, Offenbach am Main, Hessen
13,70 € / m²
- Fläche144 m²
- VerfügbarkeitSofort
- Objekt
- Ausstattung
- Lage und Verkehrsanbindung
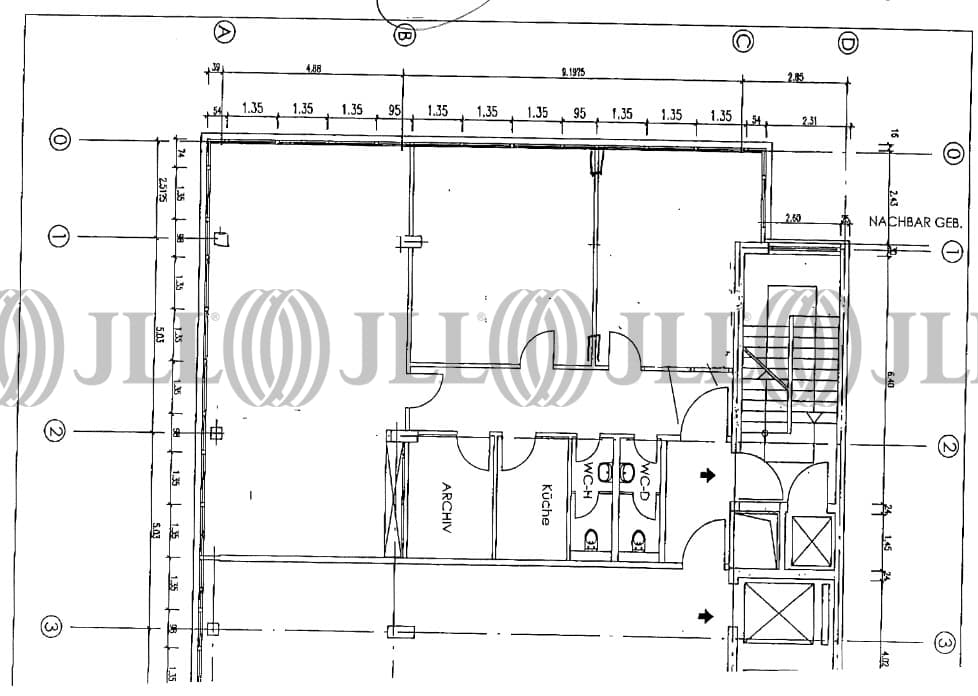
- Grundriss
- Exposé herunterladen
- Ihr Kontakt
- Anfrage senden
Objekt
Bei der Liegenschaft handelt es sich um ein 5-geschossiges Büro- und Geschäftshaus mit einem flexiblen Grundriss, welcher je nach Mieterwunsch als Einzel-, Gruppen oder Großraumbüro gestaltet werden.
Verfügbare Fläche
Lage und Verkehrsanbindung
- S-Bahn, OF-Marktplatz, Linie S1, S2, S8, S9, Gehzeit: 1 min
- Bundesautobahn, A 661, Fahrzeit: 8 min
- Bundesautobahn, A 3, Fahrzeit: 12 min
- Flughafen, Frankfurt am Main, Fahrzeit: 18 min
Ihr Kontakt

Isha Pundir
Ihr Kontakt














