Büros
ID F1690Büroimmobilie - Offenbach am Main - F1690
63065, Offenbach am Main, Hessen
Provisionspflichtig: bei Anmietung 4 Netto-Monatsmieten zzgl. gesetzlicher Umsatzsteuer.** der Wert kann je nach Vertragslaufzeit variieren.
10 € / m²
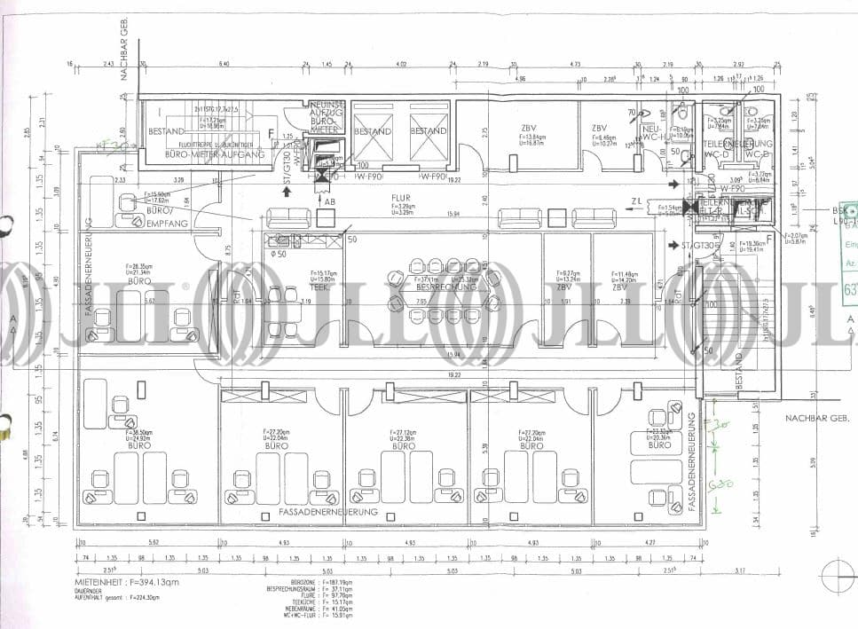
- Fläche172 - 920 m²
- VerfügbarkeitSofort
- Objekt
- Ausstattung
- Lage und Verkehrsanbindung
- Grundrisse
- Exposé herunterladen
- Ihr Kontakt
- Anfrage senden
Objekt
Bei der Liegenschaft handelt es sich um ein 5-geschossiges Büro- und Geschäftshaus mit einem flexiblen Grundriss, welcher je nach Mieterwunsch als Einzel-, Gruppen oder Großraumbüro gestaltet werden.
Zertifizierungen
Energieausweis
Für diese Liegenschaft liegt ein Bedarfsausweis vom 13.10.2014 vom Eigentümer/Vermieter vor. Die wesentlichen Energieträger der Liegenschaft sind Fernwärme, Strom. Der Endenergiebedarf Strom beträgt 51.00 kWh/(m²*a). Der Endenergiebedarf Wärme beträgt 82.20 kWh/(m²*a).Verfügbare Fläche
Lage und Verkehrsanbindung
- Flughafen, Frankfurt am Main, Fahrzeit: 18 min
- Bundesautobahn, A 661, Fahrzeit: 8 min
- Bundesautobahn, A 3, Fahrzeit: 12 min
- S-Bahn, OF-Marktplatz, Linie S1, S2, S8, S9, Gehzeit: 1 min
Ihr Kontakt

Isha Pundir
Ihr Kontakt










