Büros
ID F1680Büroimmobilie - Frankfurt am Main, Niederrad - F1680
Niederrad, 60528, Frankfurt am Main, Hessen
Provisionspflichtig: bei Anmietung 4 Netto-Monatsmieten zzgl. gesetzlicher Umsatzsteuer.** der Wert kann je nach Vertragslaufzeit variieren.
15 € / m²
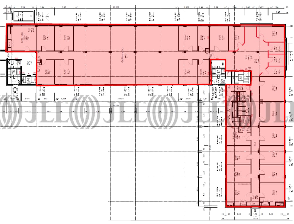
- Fläche430 - 5.235 m²
- VerfügbarkeitSofort
- Objekt
- Ausstattung
- Lage und Verkehrsanbindung
- Grundrisse
- Exposé herunterladen
- Ihr Kontakt
- Anfrage senden
Objekt
Alle Gebäude zeichnen sich durch lichtdurchflutete gläserne Eingangsbereiche aus. Auch die Büroflächen sind sehr hell und bieten eine angenehme Arbeitsatmosphäre. Die parkähnliche Anlage des Objektes sowie die großzügigen Räume zwischen den Gebäuden geben dem Objekt den Charakter eines Campus.
Der Stellplatzschlüssel beträgt 1 Stellplatz/49 m² angemieteter Bürofläche.
Der Stellplatzschlüssel beträgt 1 Stellplatz/49 m² angemieteter Bürofläche.
Zertifizierungen
Energieausweis
WIREDSCORE: PlatinumFür diese Liegenschaft liegt ein Verbrauchsausweis vom 19.04.2023 vom Eigentümer/Vermieter vor. Die wesentlichen Energieträger der Liegenschaft sind Fernwärme, Nahwärme, Strom. Der Endenergieverbrauch Strom beträgt 56.00 kWh/(m²*a). Der Endenergieverbrauch Wärme beträgt 99.00 kWh/(m²*a).
Verfügbare Fläche
Lage und Verkehrsanbindung
- Hauptbahnhof, Frankfurt am Main, Fahrzeit: 12 min
- Straßenbahn/Tram, Lyoner Straße, Linie Tram 12, Tram 19, Gehzeit: 1 min
- Bus, Lyoner Straße, Linie 78, 79, Gehzeit: 1 min
- Bundesautobahn, A 3, Fahrzeit: 5 min
- Bundesautobahn, A 5, Fahrzeit: 5 min
- Flughafen, Frankfurt am Main, Fahrzeit: 10 min
Ihr Kontakt

Christian Lütter
Ihr Kontakt





