Büros
ID F1667Büroimmobilie - Frankfurt am Main, Fechenheim - F1667
Fechenheim, 60386, Frankfurt am Main, Hessen
Provisionspflichtig: bei Anmietung 4 Netto-Monatsmieten zzgl. gesetzlicher Umsatzsteuer.** der Wert kann je nach Vertragslaufzeit variieren.
8 € / m²
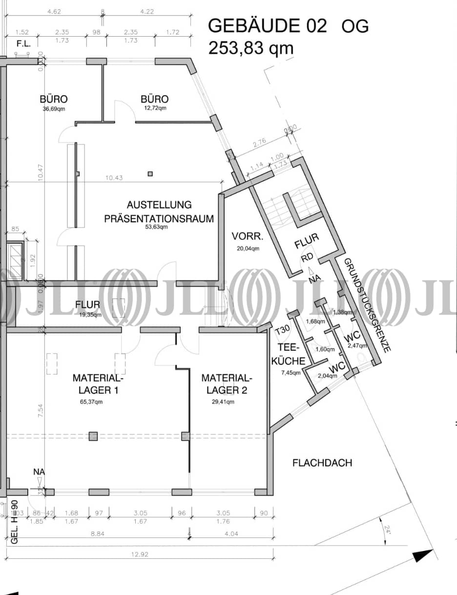
- Fläche150 - 1.719 m²
- VerfügbarkeitSofort
- Objekt
- Ausstattung
- Lage und Verkehrsanbindung
- Grundrisse
- Exposé herunterladen
- Ihr Kontakt
- Anfrage senden
Objekt
Bei der Liegenschaft handelt es sich um ein 4-geschossiges Büro- und Geschäftsgebäude. Dem Bürogebäude angeschlossen ist ein Gewerbehof u.a. mit Mietern aus der Werbemittelbranche und Freizeit. Bei Bedarf steht im Gewerbehof zusätzliche Gewerbe-/Lagerfläche zur Verfügung.
Zertifizierungen
Energieausweis
Für diese Liegenschaft liegt ein Bedarfsausweis vom 2015-06-25 vom Eigentümer/Vermieter vor. Der wesentliche Energieträger der Liegenschaft ist Fernwärme. Der Endenergiebedarf Strom beträgt 23.30 kWh/(m²*a). Der Endenergiebedarf Wärme beträgt 161.20 kWh/(m²*a).Verfügbare Fläche
Lage und Verkehrsanbindung
- Hauptbahnhof, Frankfurt am Main, Fahrzeit: 20 min
- Bahnhof, Mainkur (RB+RE, Tram 11), Gehzeit: 5 min
- Bundesautobahn, A 661, Fahrzeit: 10 min
- Bundesautobahn, A 3, Fahrzeit: 15 min
- Flughafen, Frankfurt am Main, Fahrzeit: 25 min
Ihr Kontakt

Genia Eitan
Ihr Kontakt









