Büros
ID F1661Premium JLL
Provisionsfrei
Büroimmobilie - Frankfurt am Main, Ostend - F1661
Ostend, 60314, Frankfurt am Main, Hessen
Kontaktieren Sie uns für den Preis
- Fläche605 - 4.814 m²
- VerfügbarkeitSofort
- Objekt
- Ausstattung
- Lage und Verkehrsanbindung
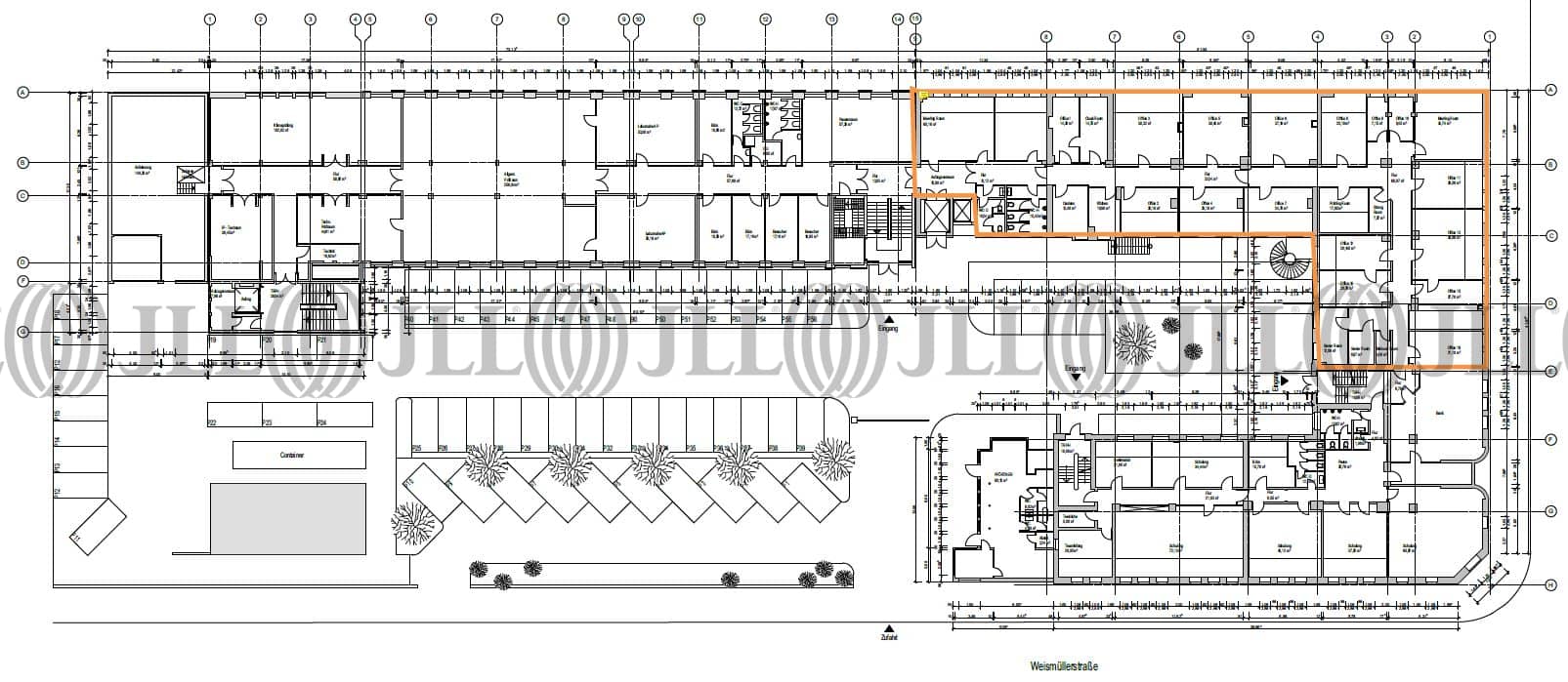
- Grundrisse
- Exposé herunterladen
- Ihr Kontakt
- Anfrage senden
Objekt
Der Campus Oberhafen gehört zu den traditionsreichen Frankfurter Wirtschaftsstandorten und war schon in den 20er Jahren ein Zentrum für pharmazeutische Forschung und Produktion.
Heute finden hier in- und ausländische Unternehmen aus dem Bereich Life Science und Pharmazie, aber auch aus den Sektoren Dienstleistung, Verwaltung und Produktion ein attraktives Angebot an flexibel nutzbaren Labor-, Büro- und Gewerbeflächen.
Die Büroflächen im Erdgeschoss/Ost und 2. Obergeschoss/West werden durch den Eigentümer provisionspflichtig angeboten.
Heute finden hier in- und ausländische Unternehmen aus dem Bereich Life Science und Pharmazie, aber auch aus den Sektoren Dienstleistung, Verwaltung und Produktion ein attraktives Angebot an flexibel nutzbaren Labor-, Büro- und Gewerbeflächen.
Die Büroflächen im Erdgeschoss/Ost und 2. Obergeschoss/West werden durch den Eigentümer provisionspflichtig angeboten.
Verfügbare Fläche
Lage und Verkehrsanbindung
- Flughafen, Frankfurt am Main, Fahrzeit: 16 min
- Bundesautobahn, A 661, Fahrzeit: 3 min
- Bundesautobahn, A 3, Fahrzeit: 7 min
- Bundesautobahn, A 650, Fahrzeit: 22 min
- Bundesstraße, B 39, Fahrzeit: 8 min
- Bundesstraße, B 272, Fahrzeit: 20 min
- Hauptbahnhof, Frankfurt am Main, Fahrzeit: 18 min
- Straßenbahn/Tram, Hanauer Landstraße / Daimlerstraße, Linie 11, 12, Gehzeit: 5 min
Ihr Kontakt

Isha Pundir
Ihr Kontakt
Marktinformationen
Mietmarkt
Ostend, Frankfurt am Main
siehe 22 passende MietobjekteErfahren Sie mehr
* Durchschnittspreis auf Grundlage historischer Transaktionen.



