Büros
ID F1559Provisionsfrei
Büroimmobilie - Neu-Isenburg - F1559
63263, Neu-Isenburg, Hessen
14 € / m²
- Fläche680 - 1.440 m²
- VerfügbarkeitAuf Anfrage
- Objekt
- Ausstattung
- Lage und Verkehrsanbindung
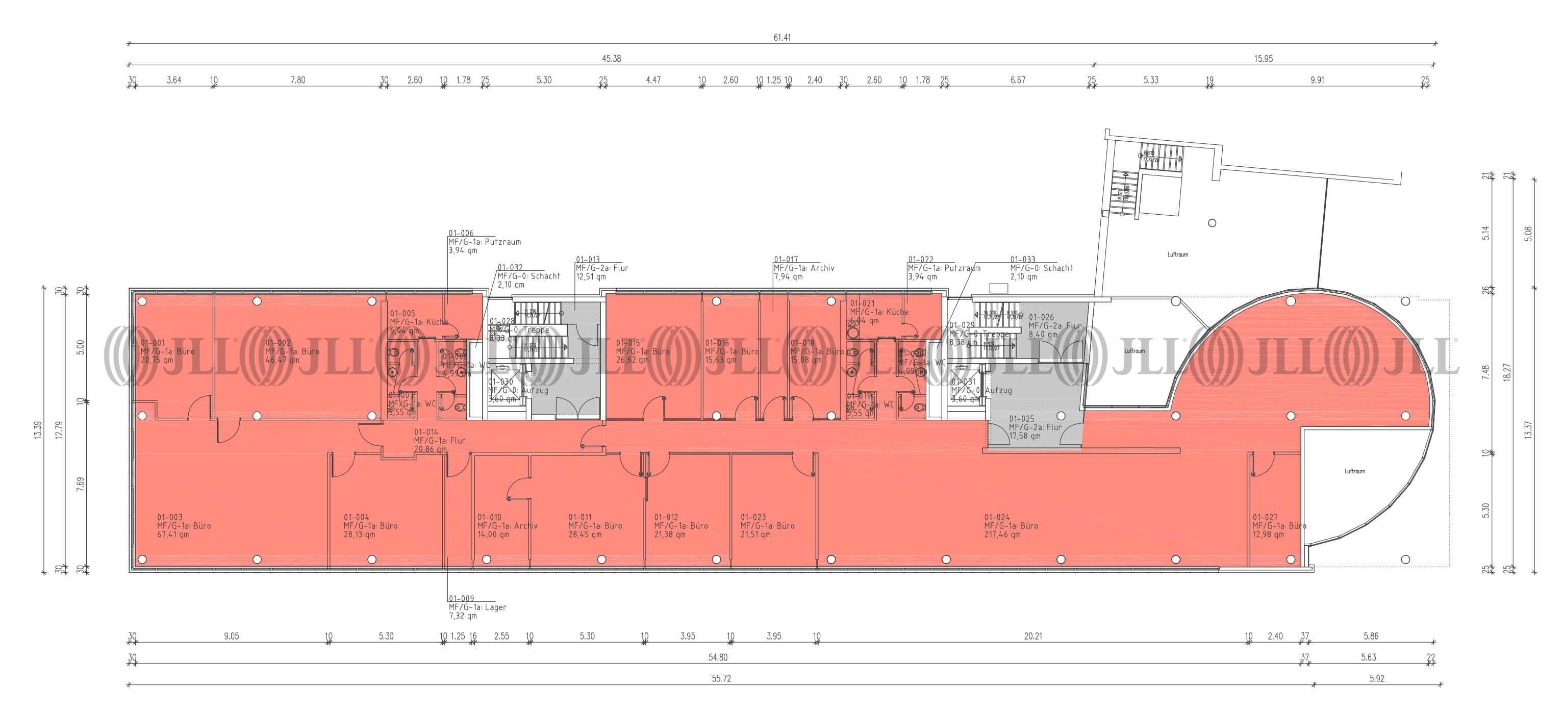
- Grundrisse
- Exposé herunterladen
- Ihr Kontakt
- Anfrage senden
Objekt
Die Liegenschaft wurde 2002 erbaut. Das Gebäude verfügt über fünf Geschosse zuzüglich einem Galeriegeschoss.
Eine flexible Raumaufteilung nach Mieterwunsch in Einzel-, Kombi- und Großraumbüros ist möglich.
Eine flexible Raumaufteilung nach Mieterwunsch in Einzel-, Kombi- und Großraumbüros ist möglich.
Verfügbare Fläche
Lage und Verkehrsanbindung
- Flughafen, Frankfurt am Main, Fahrzeit: 12 min
- Bundesautobahn, A 661, Fahrzeit: 3 min
- Bundesautobahn, A 3, Fahrzeit: 5 min
- Bundesstraße, B 459, Fahrzeit: 5 min
- Bundesstraße, B 46, Fahrzeit: 5 min
- Bus, Bushaltestelle Isenburgzentrum West Buslinien 651, 653, 661 - 663, OF-51, OF-95, n71, n72, Gehzeit: 3 min
Ihr Kontakt

Tim von Leliwa
Ihr Kontakt






