Büros
ID F1405Büroimmobilie - Frankfurt am Main, Westend-Süd - F1405
Westend-Süd, 60322, Frankfurt am Main, Hessen
Provisionspflichtig: bei Anmietung 4 Netto-Monatsmieten zzgl. gesetzlicher Umsatzsteuer.** der Wert kann je nach Vertragslaufzeit variieren.
33 € / m²
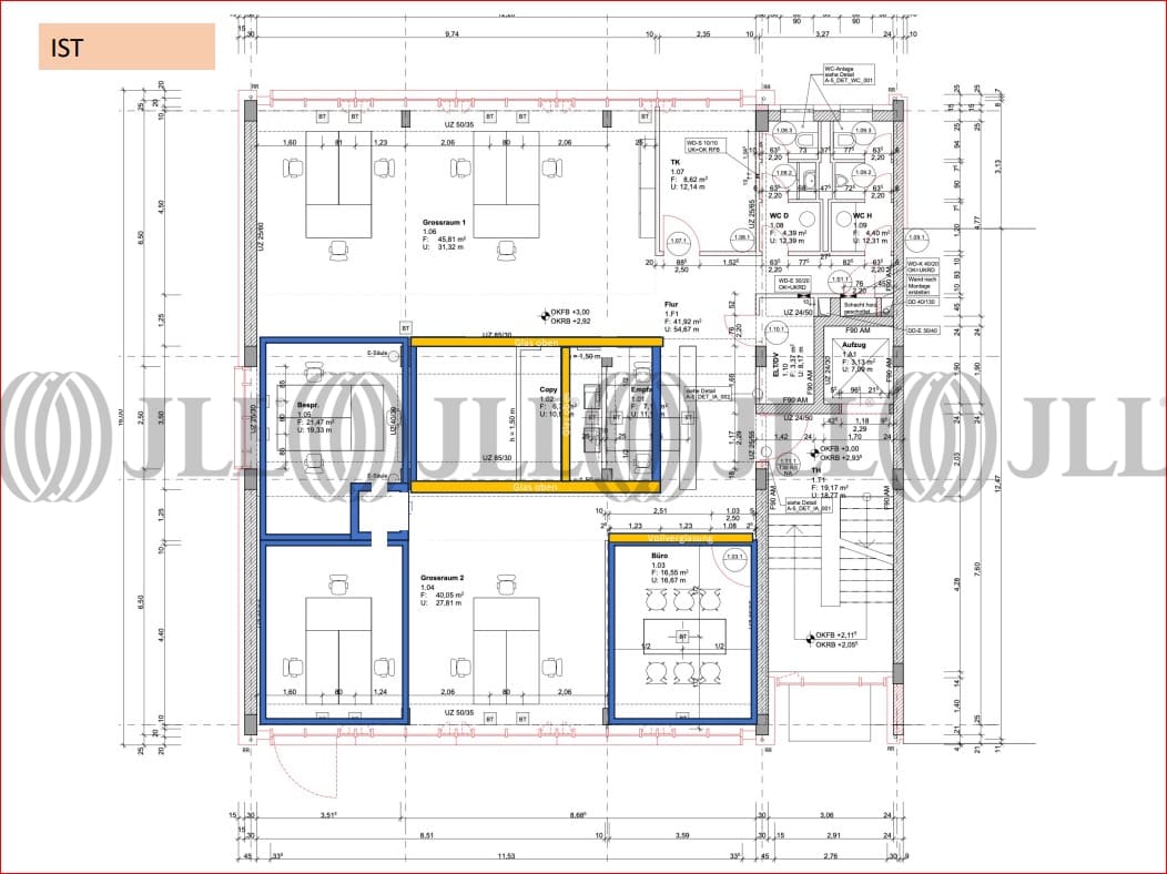
- Fläche226 m²
- Verfügbarkeit01.04.2025
- Objekt
- Ausstattung
- Lage und Verkehrsanbindung
- Grundriss
- Exposé herunterladen
- Ihr Kontakt
- Anfrage senden
Objekt
Das bestehende Bürogebäude wurde umfassend revitalisiert und an den aktuellen Stand der Technik angepasst. Mit der modernen Fassade und der Aufstockung eines Staffelgeschosses erhielt das Objekt ein neues Erscheinungsbild. Das Entree und der Eingangsbereich wurden unter Verwendung edler Materialien aufwendig gestaltet und geben dem Gebäude einen repräsentativen Charakter mit Wiedererkennungswert.
Verfügbare Fläche
Lage und Verkehrsanbindung
- Flughafen, Frankfurt am Main, Fahrzeit: 17 min
- Bundesautobahn, A 66, Fahrzeit: 7 min
- Bundesautobahn, A 5, Fahrzeit: 10 min
- Bus, Eschenheimer Tor, Linie 36, Gehzeit: 3 min
- Hauptbahnhof, Frankfurt am Main, Fahrzeit: 7 min
- U-Bahn, Eschenheimer Tor, Linie U1, U2, U3, U8, Gehzeit: 3 min
Ihr Kontakt

Irini Fenner
Ihr Kontakt








