Büros
ID F1363Provisionsfrei
Aktualisiert
Büroimmobilie - Frankfurt am Main, Innenstadt - F1363
Innenstadt, 60311, Frankfurt am Main, Hessen
32 € / m²
- Fläche820 m²
- VerfügbarkeitSofort
- Objekt
- Ausstattung
- Lage und Verkehrsanbindung
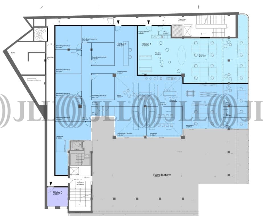
- Grundriss
- Exposé herunterladen
- Ihr Kontakt
- Anfrage senden
Objekt
Bei der Liegenschaft handelt es sich um ein 7-geschossiges Büro- und Geschäftshaus. Parkplätze können in umliegenden Parkhäusern angemietet werden.
Zertifizierungen
Energieausweis
Für diese Liegenschaft liegt ein Verbrauchsausweis vom 14.07.2009 vom Eigentümer/Vermieter vor. Die wesentlichen Energieträger der Liegenschaft sind Erdgas leicht, Strom. Der Endenergieverbrauch Strom beträgt 94.30 kWh/(m²*a). Der Endenergieverbrauch Wärme beträgt 92.20 kWh/(m²*a).Verfügbare Fläche
Lage und Verkehrsanbindung
Restaurants und Dienstleister des täglichen Bedarfs befinden sich in direkter Umgebung.
- Flughafen, Frankfurt am Main, Fahrzeit: 20 min
- Bundesautobahn, A 648, Fahrzeit: 5 min
- Bundesautobahn, A 5, Fahrzeit: 10 min
- Hauptbahnhof, Frankfurt am Main, Fahrzeit: 7 min
- U-Bahn, Hauptwache, Linie U1-U5, U8, Gehzeit: 5 min
- Hauptbahnhof, Frankfurt, Gehzeit: 12 min
Ihr Kontakt

Isha Pundir
Ihr Kontakt
Marktinformationen
Mietmarkt
Innenstadt, Frankfurt am Main
Gew. Ø-Miete
32 € / m²
siehe 38 passende MietobjekteErfahren Sie mehr* Durchschnittspreis auf Grundlage historischer Transaktionen.




