Büros
ID F1324Provisionsfrei
Büroimmobilie - Eschborn - F1324
65760, Eschborn, Hessen
13 € / m²
- Fläche300 - 3.212 m²
- VerfügbarkeitAuf Anfrage
- Objekt
- Ausstattung
- Lage und Verkehrsanbindung
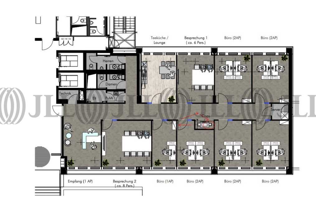
- Grundrisse
- Exposé herunterladen
- Ihr Kontakt
- Anfrage senden
Objekt
Bei der Neuentwicklung handelt es sich um ein Ensemble von zwei hochwertigen Bürogebäuden mit prägnanter Architektur. Die beiden Gebäude D9 (Düsseldorfer Straße 9) und D13 (Düsseldorfer Straße 13) wurden mit einer anthrazitfarbenen Pfosten-/Riegelfassade mit klarer sachlicher Gestaltung und raumhohen Fensterelementen versehen.
Zertifizierungen
Energieausweis
LEED: GoldFür diese Liegenschaft liegt ein Verbrauchsausweis vom 29.05.2018 vom Eigentümer/Vermieter vor. Die wesentlichen Energieträger der Liegenschaft sind Erdgas schwer, Strom. Der Endenergieverbrauch Strom beträgt 42 kWh/(m²*a). Der Endenergieverbrauch Wärme beträgt 66 kWh/(m²*a).
Verfügbare Fläche
Lage und Verkehrsanbindung
- Flughafen, Frankfurt am Main, Fahrzeit: 12 min
- Bundesautobahn, A 648, Fahrzeit: 5 min
- Bundesautobahn, A 5, Fahrzeit: 8 min
- Bus, Frankfurter Straße, Linie 58, 810, Gehzeit: 5 min
- S-Bahn, Eschborn Süd, Linie S3, S4, Gehzeit: 15 min
- Hauptbahnhof, Frankfurt am Main, Fahrzeit: 11 min
Ihr Kontakt

Lukas Battel
Ihr Kontakt



















