Büros
ID F1313Provisionsfrei
Büroimmobilie - Frankfurt am Main, Ostend - F1313
Ostend, 60314, Frankfurt am Main, Hessen
10 € / m²
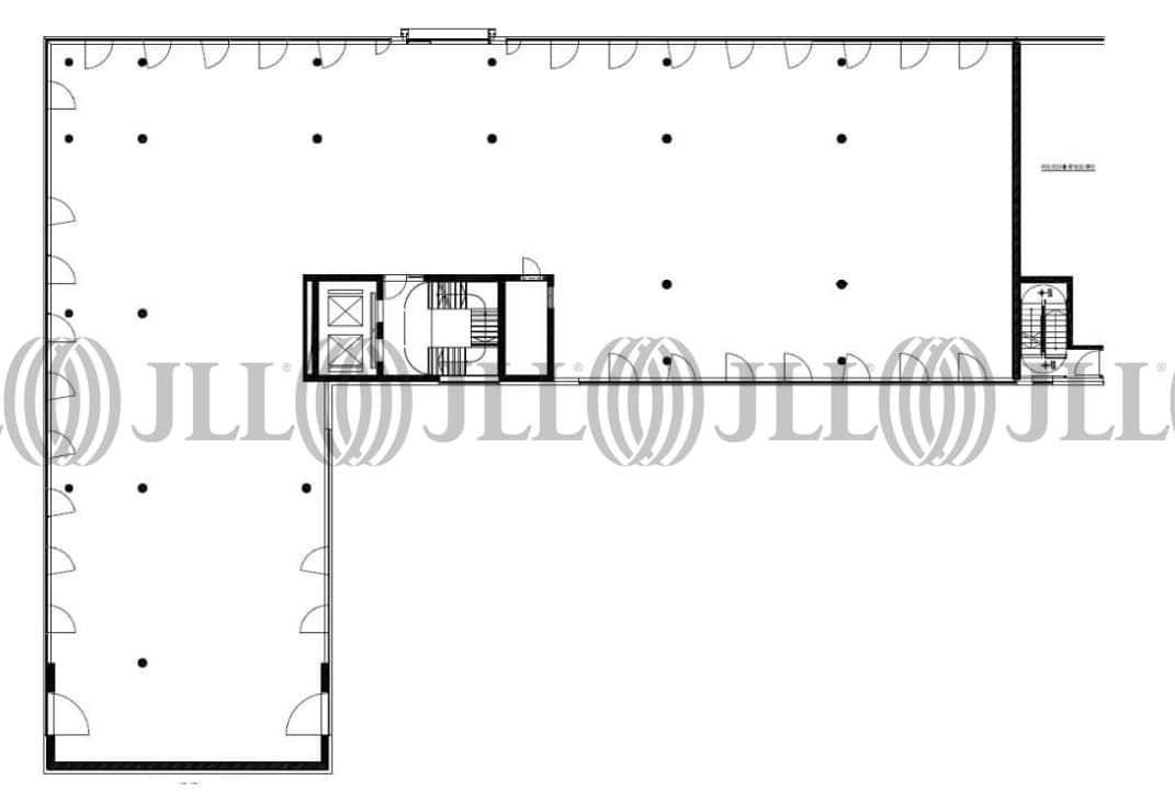
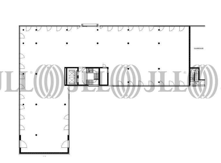
- Fläche876 m²
- VerfügbarkeitAuf Anfrage
- Objekt
- Ausstattung
- Lage und Verkehrsanbindung
- Grundriss
- Exposé herunterladen
- Ihr Kontakt
Objekt
Bei der Liegenschaft handelt es sich um einen Neubau mit Laden-/Restaurant- sowie Büroflächen. Die Büroflächen werden über zwei großzügige Foyers mit jeweils zwei Aufzügen erschlossen. Im Objekt befindet sich der Fitness-Club FitnessFirst.
Zertifizierungen
Energieausweis
Für diese Liegenschaft liegt ein Verbrauchsausweis vom 06.09.2019 vom Eigentümer/Vermieter vor. Die wesentlichen Energieträger der Liegenschaft sind Erdgas schwer, Strom. Der Endenergieverbrauch Strom beträgt 8.30 kWh/(m²*a). Der Endenergieverbrauch Wärme beträgt 122.90 kWh/(m²*a).Verfügbare Fläche
Lage und Verkehrsanbindung
- Flughafen, Frankfurt am Main, Fahrzeit: 17 min
- Bundesautobahn, A 661, Fahrzeit: 5 min
- Bundesautobahn, A 3, Fahrzeit: 10 min
- Bundesstraße, B 43, Fahrzeit: 3 min
- Bundesstraße, B 3, Fahrzeit: 3 min
- Bus, Ostendbahnhof, Linie 31, Gehzeit: 5 min
- Straßenbahn/Tram, Schwedlerstraße, Linie 11, Gehzeit: 1 min
- Hauptbahnhof, Frankfurt am Main, Fahrzeit: 12 min
Ihr Kontakt

Dennis Arnold
Ihr Kontakt
Marktinformationen
Mietmarkt
Ostend, Frankfurt am Main
siehe 24 passende MietobjekteErfahren Sie mehr
* Durchschnittspreis auf Grundlage historischer Transaktionen.





