Büros
ID F1296Provisionsfrei
Büroimmobilie - Frankfurt am Main, Bockenheim - F1296
Bockenheim, 60487, Frankfurt am Main, Hessen
10 € / m²
- Fläche295 - 590 m²
- VerfügbarkeitSofort
- Objekt
- Ausstattung
- Lage und Verkehrsanbindung
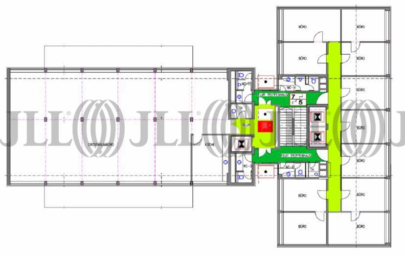
- Grundrisse
- Exposé herunterladen
- Ihr Kontakt
- Anfrage senden
Objekt
Bei der Liegenschaft handelt es sich um ein 12-geschossiges Bürogebäude mit einem flexibelen Grundriss, welcher je nach Mieterwunsch als Einzel-, Gruppen oder Großraumbüro gestaltet werden.
Zertifizierungen
Energieausweis
Für diese Liegenschaft liegt ein Verbrauchsausweis vom 2015-03-04 vom Eigentümer/Vermieter vor. Die wesentlichen Energieträger der Liegenschaft sind Strom,Erdgas schwer. Der Endenergieverbrauch Strom beträgt 115.60 kWh/(m²*a). Der Endenergieverbrauch Wärme beträgt 158.90 kWh/(m²*a).Verfügbare Fläche
Lage und Verkehrsanbindung
- Flughafen, Frankfurt am Main, Fahrzeit: 15 min
- Bundesautobahn, A 66, Fahrzeit: 5 min
- Bundesautobahn, A 5, Fahrzeit: 10 min
- Bus, Bushaltestelle Industriehof Buslinien 34, 72, 73, Gehzeit: 5 min
Ihr Kontakt

Christian Lütter
Ihr Kontakt
Marktinformationen
Mietmarkt
Bockenheim, Frankfurt am Main
Gew. Ø-Miete
10 € / m²
siehe 24 passende MietobjekteErfahren Sie mehr* Durchschnittspreis auf Grundlage historischer Transaktionen.




