Büros
ID F1293Provisionsfrei
Aktualisiert
Büroimmobilie - Frankfurt am Main, Fechenheim - F1293
Fechenheim, 60386, Frankfurt am Main, Hessen
13 € - 15 € / m²
- Fläche1.116 - 4.866 m²
- VerfügbarkeitSofort
- Objekt
- Ausstattung
- Lage und Verkehrsanbindung
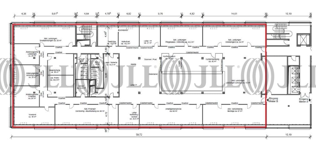
- Grundrisse
- Exposé herunterladen
- Ihr Kontakt
- Anfrage senden
Objekt
Bei der Liegenschaft handelt es sich um das ehemalige Hauptbetriebsgebäude des Kosmetikkonzerns Jade. Die loftartigen Flächen wurden für eine Büronutzung umfassend umgebaut und saniert. Die individuelle Ausstattung wird in Abstimmung mit dem Mieter erbracht. Im Untergeschoss des Gebäudes befindet sich ein sehr hochwertiges Betriebsrestaurant.
Zertifizierungen
Energieausweis
Für diese Liegenschaft liegt ein Verbrauchsausweis vom 14.07.2015 vom Eigentümer/Vermieter vor. Die wesentlichen Energieträger der Liegenschaft sind Strom, Wärmepumpe. Der Endenergieverbrauch Strom beträgt 15.08 kWh/(m²*a). Der Endenergieverbrauch Wärme beträgt 36.25 kWh/(m²*a).Verfügbare Fläche
Lage und Verkehrsanbindung
- Flughafen, Frankfurt am Main, Fahrzeit: 17 min
- Bundesautobahn, A 661, Fahrzeit: 5 min
- Bundesautobahn, A 3, Fahrzeit: 10 min
- Bus, Cassellastraße, Linie 41, Gehzeit: 2 min
- Hauptbahnhof, Frankfurt am Main, Fahrzeit: 12 min
- Straßenbahn/Tram, Cassellastraße, Linie 11, Gehzeit: 2 min
Ihr Kontakt

Lukas Battel
Ihr Kontakt




