Büros
ID F1267Provisionsfrei
Büroimmobilie - Frankfurt am Main, Niederrad - F1267
Niederrad, 60528, Frankfurt am Main, Hessen
Kontaktieren Sie uns für den Preis
- Fläche650 - 2.770 m²
- VerfügbarkeitSofort
- Objekt
- Ausstattung
- Lage und Verkehrsanbindung
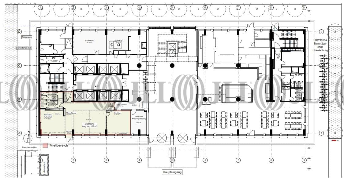
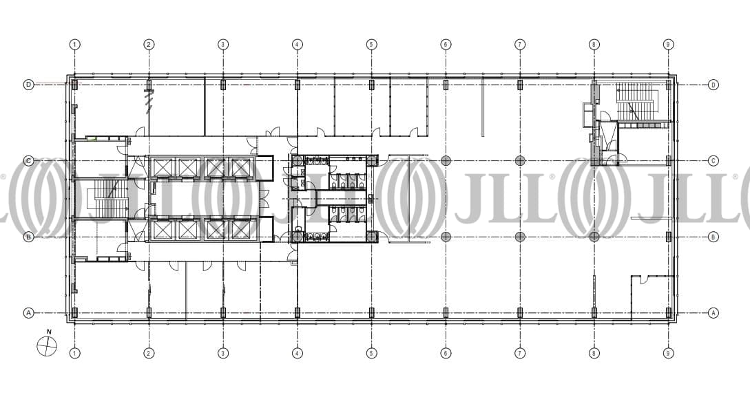
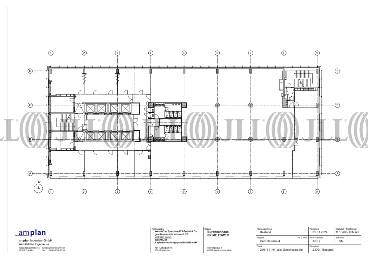
- Grundrisse
- Exposé herunterladen
- Ihr Kontakt
- Anfrage senden
Objekt
Bei der Liegenschaft handelt es sich um ein 16-geschossiges Bürogebäude, das in 2001 umfassend revitalsiert wurde. Im Zuge der Repositionierung werden die Allgemeinflächen, wie Foyer, Aufzugsvorräume und Kantine umfangreich saniert.
Zertifizierungen
Energieausweis
BREEAM: ExcellentFür diese Liegenschaft liegt ein Verbrauchsausweis vom 27.02.2020 vom Eigentümer/Vermieter vor. Die wesentlichen Energieträger der Liegenschaft sind Fernwärme, Strom. Der Endenergieverbrauch Strom beträgt 61.30 kWh/(m²*a). Der Endenergieverbrauch Wärme beträgt 78.30 kWh/(m²*a).
Verfügbare Fläche
Lage und Verkehrsanbindung
- Flughafen, Frankfurt am Main, Fahrzeit: 10 min
- Bundesautobahn, A 3, Fahrzeit: 5 min
- Bundesautobahn, A 5, Fahrzeit: 5 min
- Bus, Frankfurt-Niederrad, Linie 78, 79, Gehzeit: 5 min
- Straßenbahn/Tram, Lyoner Straße, Linie 12, 19, Gehzeit: 5 min
- S-Bahn, Niederrad, Linie S7, S8, S9, Gehzeit: 5 min
- Hauptbahnhof, Frankfurt am Main, Fahrzeit: 12 min
Ihr Kontakt

Dennis Arnold
Ihr Kontakt







