Büros
ID F1213Provisionsfrei
Aktualisiert
Büroimmobilie - Frankfurt am Main, Ostend - F1213
Ostend, 60314, Frankfurt am Main, Hessen
19,80 € / m²
- Fläche576 - 1.203 m²
- Verfügbarkeit01.10.2026
- Objekt
- Ausstattung
- Lage und Verkehrsanbindung
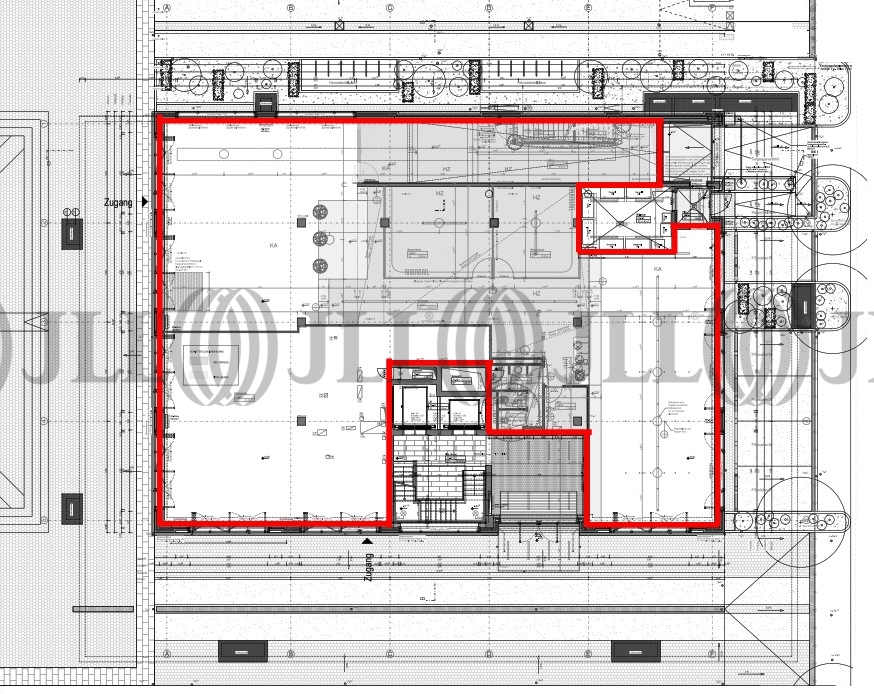
- Grundrisse
- Exposé herunterladen
- Ihr Kontakt
- Anfrage senden
Objekt
Die Liegenschaft ist ein siebengeschossiges Geschäftshaus mit Laden- und Gastronomieflächen im Erdgeschoss sowie Büroflächen in den Obergeschossen.
Zertifizierungen
Energieausweis
Für diese Liegenschaft liegt ein Verbrauchsausweis vom 09.11.2018 vom Eigentümer/Vermieter vor. Der wesentliche Energieträger der Liegenschaft ist Erdgas leicht. Der Endenergieverbrauch Strom beträgt 92.00 kWh/(m²*a). Der Endenergieverbrauch Wärme beträgt 92.00 kWh/(m²*a).Verfügbare Fläche
Lage und Verkehrsanbindung
- Flughafen, Frankfurt am Main, Fahrzeit: 17 min
- Bundesautobahn, A 661, Fahrzeit: 6 min
- Bundesautobahn, A 3, Fahrzeit: 12 min
- Hauptbahnhof, Frankfurt am Main, Fahrzeit: 14 min
- Straßenbahn/Tram, Osthafennplatz, Linie 11, 14, Gehzeit: 7 min
Ihr Kontakt

Genia Eitan
Ihr Kontakt
Marktinformationen
Mietmarkt
Ostend, Frankfurt am Main
siehe 23 passende MietobjekteErfahren Sie mehr
* Durchschnittspreis auf Grundlage historischer Transaktionen.



























