Büros
ID F1210Büroimmobilie - Offenbach am Main - F1210
63067, Offenbach am Main, Hessen
Provisionspflichtig: bei Anmietung 4 Netto-Monatsmieten zzgl. gesetzlicher Umsatzsteuer.** der Wert kann je nach Vertragslaufzeit variieren.
10 € / m²
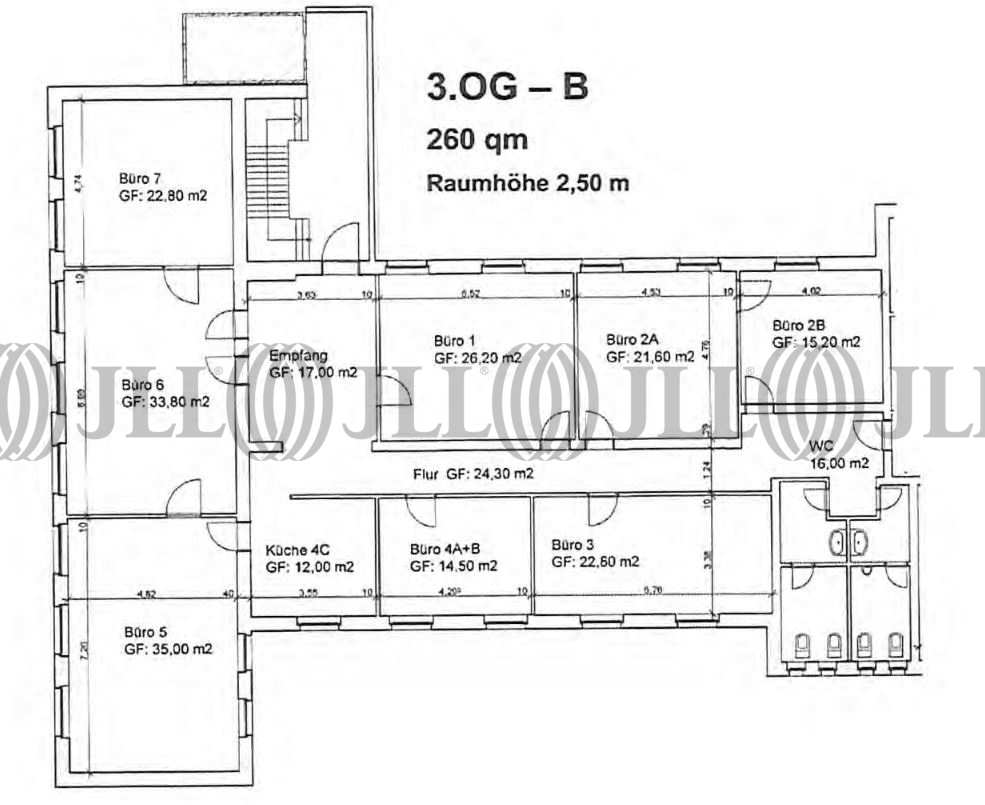
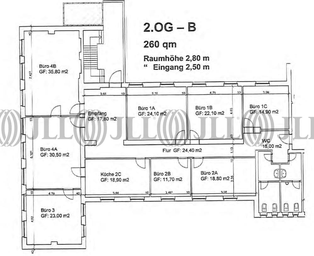
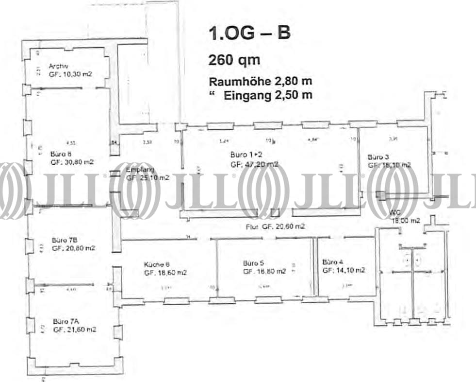
- Fläche260 - 1.040 m²
- VerfügbarkeitDezember 2025
- Objekt
- Ausstattung
- Lage und Verkehrsanbindung
- Grundrisse
- Exposé herunterladen
- Ihr Kontakt
- Anfrage senden
Objekt
Bei dem Objekt handelt es sich um eine vielseitige Gewerbeimmobilie, die sich für verschiedene Nutzungsarten eignet: Verwaltung, Praxen, Verkauf, Ausstellung, Service, Produktion und Lager. Die Mietflächen können individuell nach den Wünschen der Mieter gestaltet werden.
Zertifizierungen
Energieausweis
Für diese Liegenschaft liegt ein Verbrauchsausweis vom 03.07.2014 vom Eigentümer/Vermieter vor. Der wesentliche Energieträger der Liegenschaft ist Fernwärme. Der Endenergieverbrauch Strom beträgt 5.20 kWh/(m²*a). Der Endenergieverbrauch Wärme beträgt 122.20 kWh/(m²*a).Verfügbare Fläche
Lage und Verkehrsanbindung
- Flughafen, Frankfurt am Main, Fahrzeit: 20 min
- Bundesautobahn, A 661, Fahrzeit: 5 min
- Bundesautobahn, A 3, Fahrzeit: 10 min
- S-Bahn, Ledermuseum, Linie S1, S2, S8, S9, Gehzeit: 5 min
Ihr Kontakt

Dennis Arnold
Ihr Kontakt

