Büros
ID F1207Provisionsfrei
Büroimmobilie - Frankfurt am Main, Ostend - F1207
Ostend, 60314, Frankfurt am Main, Hessen
Kontaktieren Sie uns für den Preis
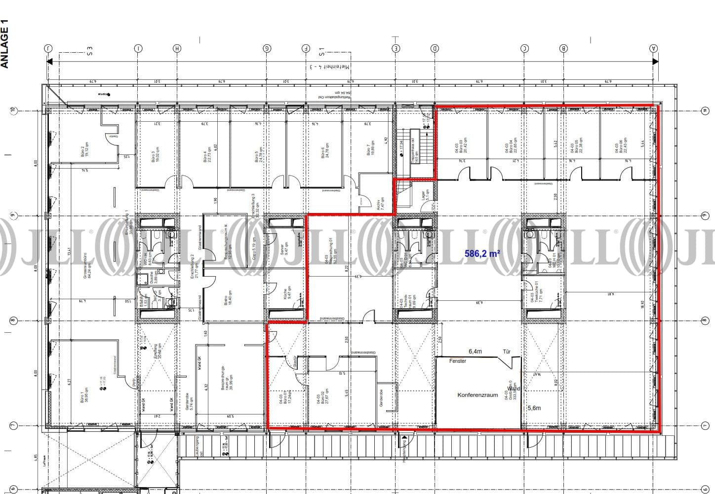
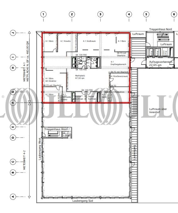
- Fläche461 - 1.047 m²
- VerfügbarkeitSofort
- Objekt
- Ausstattung
- Lage und Verkehrsanbindung
- Grundrisse
- Exposé herunterladen
- Ihr Kontakt
- Anfrage senden
Objekt
Das Kontorhaus Osthafen, ein U-förmiges Gewerbeobjekt, bietet aufgrund seiner Architektur und der Grundrisse vielfältige Nutzungen. Neben einer Büronutzung eignen sich die Flächen auch für eine Lager-, Service-, Atelier- und Werkstattnutzung oder als Showroom. Das Gebäude hat mit seinen lichten Raumhöhen und der voll verglasten Fassade einen ausgeprägten Loftcharakter. Der Ausbau der Flächen erfolgt nach Anspruch des künftigen Nutzers.
Zertifizierungen
Energieausweis
Für diese Liegenschaft liegt ein Bedarfsausweis vom 18.11.2015 vom Eigentümer/Vermieter vor. Die wesentlichen Energieträger der Liegenschaft sind Erdgas leicht, Strom. Der Endenergiebedarf Strom beträgt 34.00 kWh/(m²*a). Der Endenergiebedarf Wärme beträgt 129.00 kWh/(m²*a).Verfügbare Fläche
Lage und Verkehrsanbindung
- Hauptbahnhof, Frankfurt am Main, Fahrzeit: 19 min
- Straßenbahn/Tram, Schwedlerstraße Linie 11 , Gehzeit: 5 min
- Bundesautobahn, A 661, Fahrzeit: 10 min
- Bundesautobahn, A 3, Fahrzeit: 15 min
- Flughafen, Frankfurt am Main, Fahrzeit: 25 min
Ihr Kontakt

Christian Lütter
Ihr Kontakt
Marktinformationen
Mietmarkt
Ostend, Frankfurt am Main
siehe 21 passende MietobjekteErfahren Sie mehr
* Durchschnittspreis auf Grundlage historischer Transaktionen.




