Büros
ID F1192Provisionsfrei
Büroimmobilie - Neu-Isenburg - F1192
63263, Neu-Isenburg, Hessen
15 € / m²
- Fläche452 - 2.830 m²
- VerfügbarkeitAuf Anfrage
- Objekt
- Ausstattung
- Lage und Verkehrsanbindung
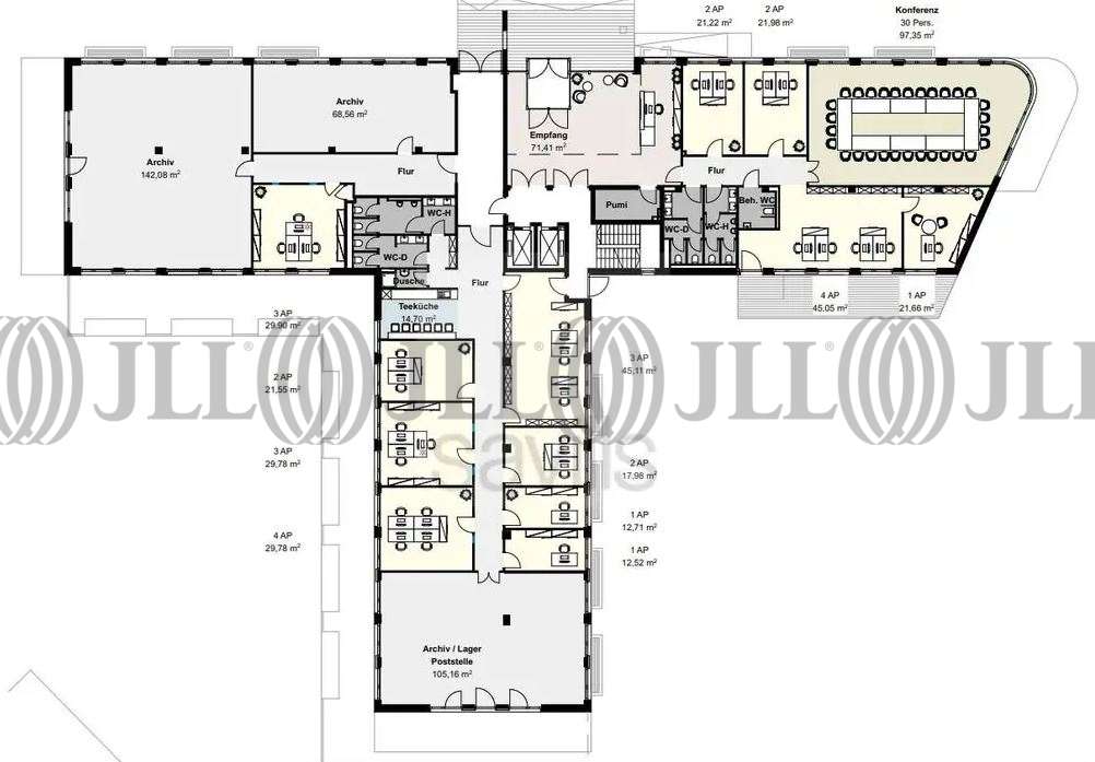
- Grundrisse
- Exposé herunterladen
- Ihr Kontakt
- Anfrage senden
Objekt
Das Objekt befindet sich im Gewerbegebiet Süd von Neu-Isenburg. Das Grundstück umfasst ca. 4.900 m² und die Gesamtmietfläche beträgt ca. 6.385 m². Die Staffelgeschosse verfügen über begehbare Terrassen. Ausreichend Stellplätze stehen in der Tiefgarage als auch auf dem nahegelegenen Parkdeck zur Verfügung.
Durch das neue Standortprojekt „Neue Welt“ – Urbanes Stadtquartier mit rd. 115.000 qm Fläche – ergeben sich zudem neue infrastrukturelle Möglichkeiten für das Objekt.
Durch das neue Standortprojekt „Neue Welt“ – Urbanes Stadtquartier mit rd. 115.000 qm Fläche – ergeben sich zudem neue infrastrukturelle Möglichkeiten für das Objekt.
Zertifizierungen
Energieausweis
DGNB: PlatinumVerfügbare Fläche
Lage und Verkehrsanbindung
- Flughafen, Frankfurt am Main, Fahrzeit: 15 min
- Bundesautobahn, A 661, Fahrzeit: 6 min
- Bundesautobahn, A 3, Fahrzeit: 7 min
- Bundesstraße, B 44, Fahrzeit: 6 min
Ihr Kontakt

Tim von Leliwa
Ihr Kontakt








